EasyManua.ls Logo

Delta RPI-H5 - Page 19

Delta RPI-H5
64 pages
To Next Page IconTo Next Page
To Next Page IconTo Next Page
To Previous Page IconTo Previous Page
To Previous Page IconTo Previous Page
Loading...
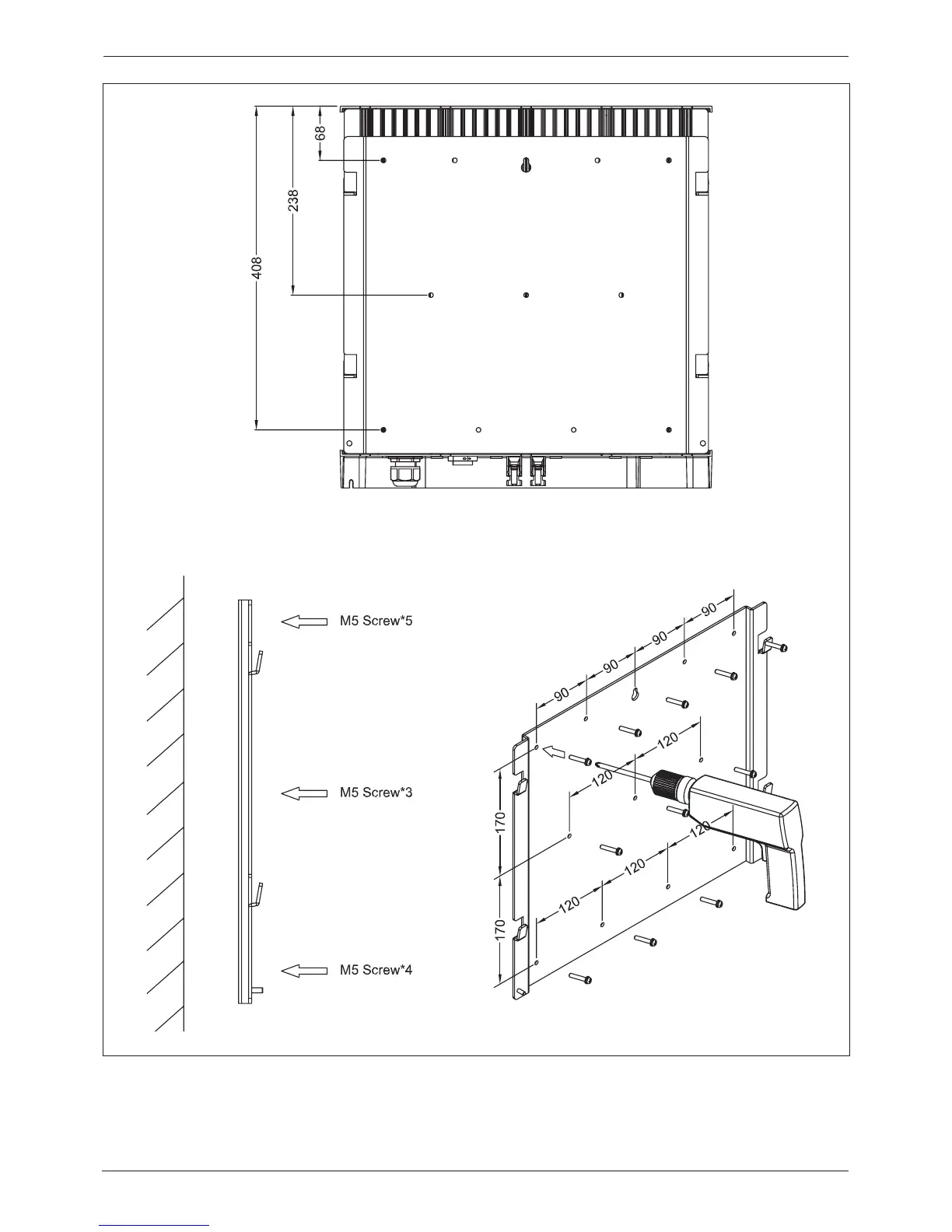
Figure 4-2 : Screw the mounting bracket for RPI-H5
19
Installation

Table of Contents

Related product manuals