EasyManua.ls Logo

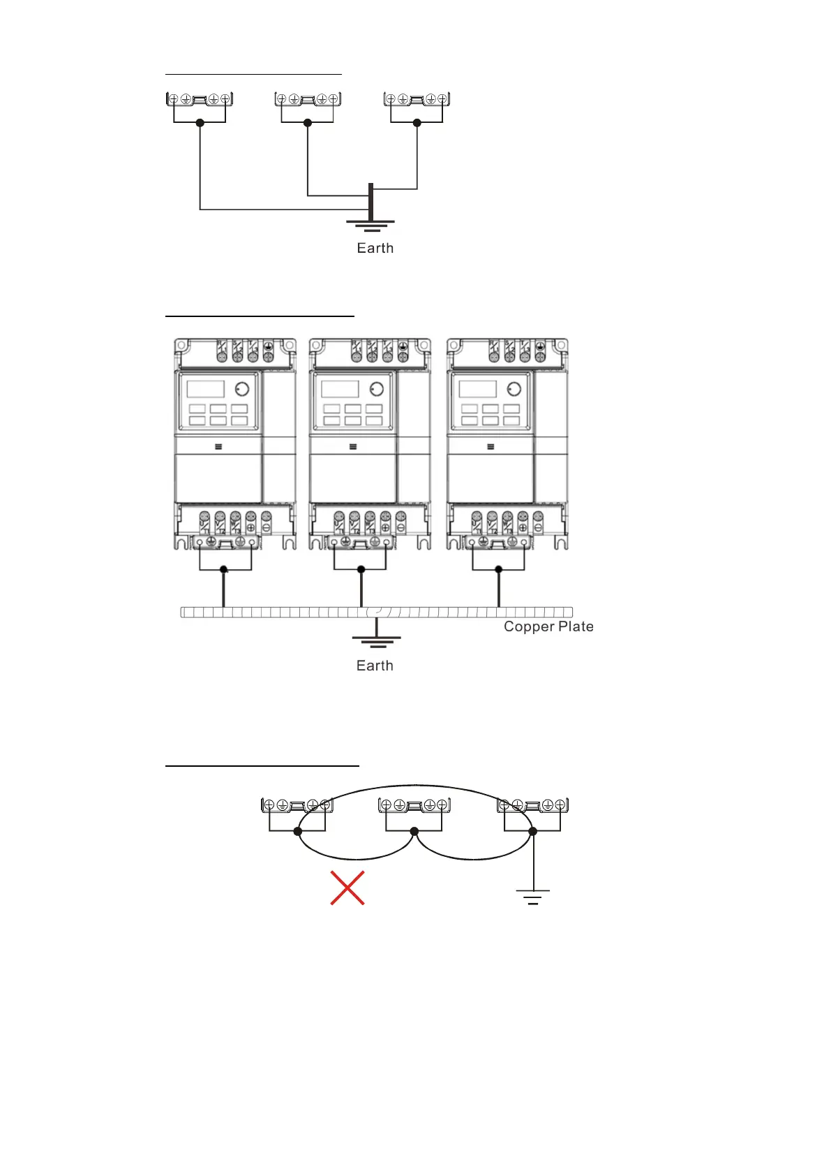
Delta VFD040EL43W - Excellent Grounding Method; Acceptable Grounding Method; Grounding Method Not Allowed

Delta VFD040EL43W
197 pages
Print Icon
To Next Page IconTo Next Page
To Next Page IconTo Next Page
To Previous Page IconTo Previous Page
To Previous Page IconTo Previous Page
Loading...
Chapter 2 Installation and Wiring
VFD-EL-W
2-5
Excellent grounding method:
Acceptable grounding method:
Grounding method not allowed:
Not allowed

Table of Contents

Related product manuals