EasyManua.ls Logo

Delta VFD25AMS43AFSHA - Page 66

Delta VFD25AMS43AFSHA
445 pages
Print Icon
To Next Page IconTo Next Page
To Next Page IconTo Next Page
To Previous Page IconTo Previous Page
To Previous Page IconTo Previous Page
Loading...
Chapter 7 Optional AccessoriesMS300 (High Speed Model)
7-23
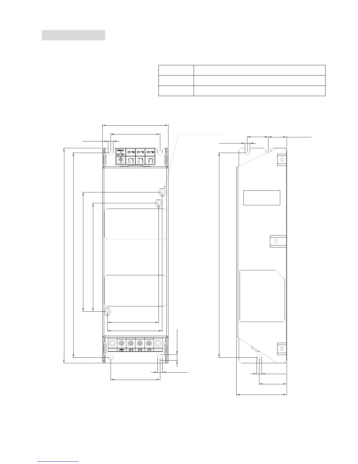
Filter Dimension
EMF10AM23A
EMF6A0M43A
Screw Torque
M5 * 2 16~20 kg-cm / [13.9~17.3 lb-in.] / [1.56~1.96 Nm]
M4 * 2 14~16 kg-cm / [12.2~13.8 lb-in.] / [1.38~1.56 Nm]
55.0 [2.17]
223.0 [8.78]
23.0 [0.91]
30.0 [1.18]
20.0 [0.79]
5.5 [0.22]
5.5 [0.22]
72.0 [2.83]
223.0 [8.78]
234.0 [9.21]
54.0 [2.13]
5.5 [0.22]
54.0 [2.13]
6.5 [0.26]
5.5 [0.22]
130.0 [5.12]
118.0 [4.65]
56.0 [2.20]
60.0 [2.36]
M5 screw
TORQUE:16-18kgf-cm

Table of Contents

Related product manuals