EasyManua.ls Logo

Delta VFD25AMS43AFSHA - Page 67

Delta VFD25AMS43AFSHA
445 pages
Print Icon
To Next Page IconTo Next Page
To Next Page IconTo Next Page
To Previous Page IconTo Previous Page
To Previous Page IconTo Previous Page
Loading...
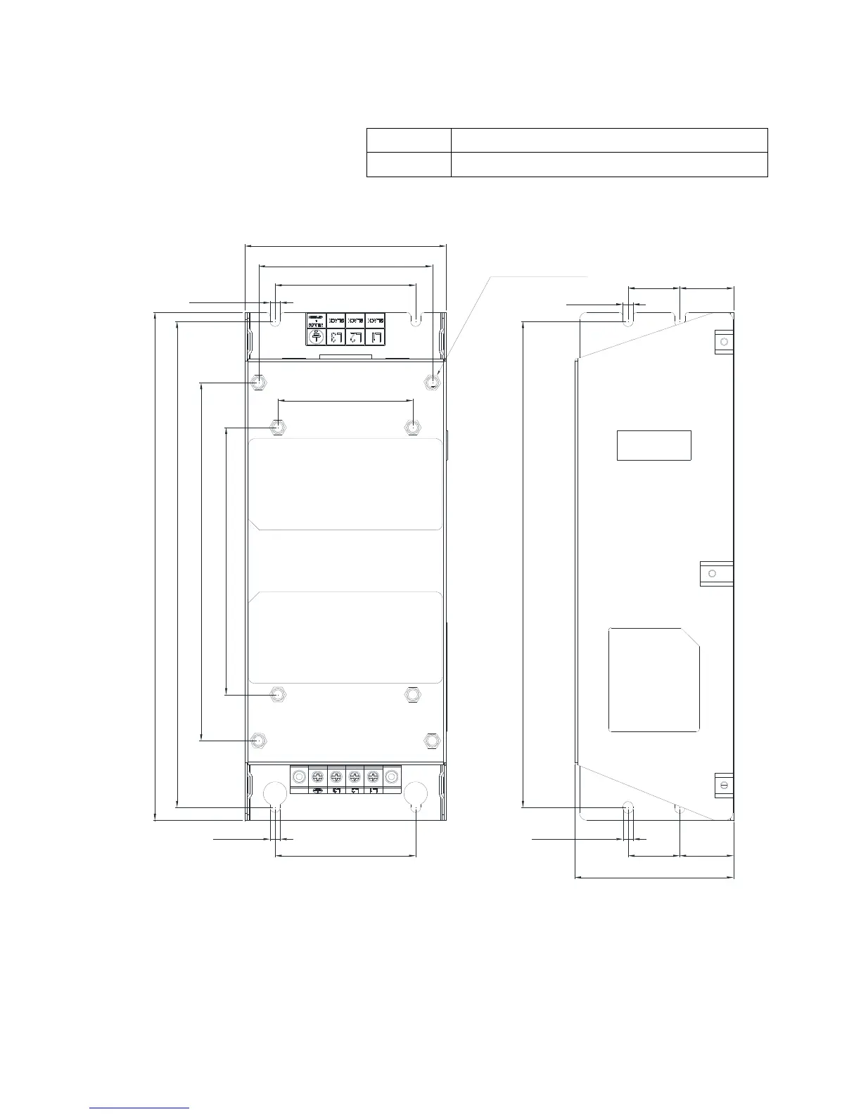
Chapter 7 Optional Accessories MS300 (High Speed Model)
7-24
EMF27AM21B; EMF24AM23B
EMF33AM23B; EMF12AM43B
EMF23AM43B
Screw Torque
M5 * 4 16~20 kg-cm / [13.9~17.3 lb-in.] / [1.56~1.96 Nm]
29.1 [1.14]
86.0 [3.39]
263.0 [10.35]
29.1 [1.14]28.0 [1.10]
5.5 [0.22]
5.5 [0.22]
109.0 [4.29]
275.0 [10.83]
263.0 [10.35]
5.5 [0.22]
76.0 [2.99]
76.0 [2.99]
5.5 [0.22]
28.0 [1.10]
193.8 [7.63]
144.5 [5.69]
94.0 [3.70]
73.0 [2.87]
M5 screw
TORQUE:16-18kgf-cm

Table of Contents

Related product manuals