EasyManua.ls Logo

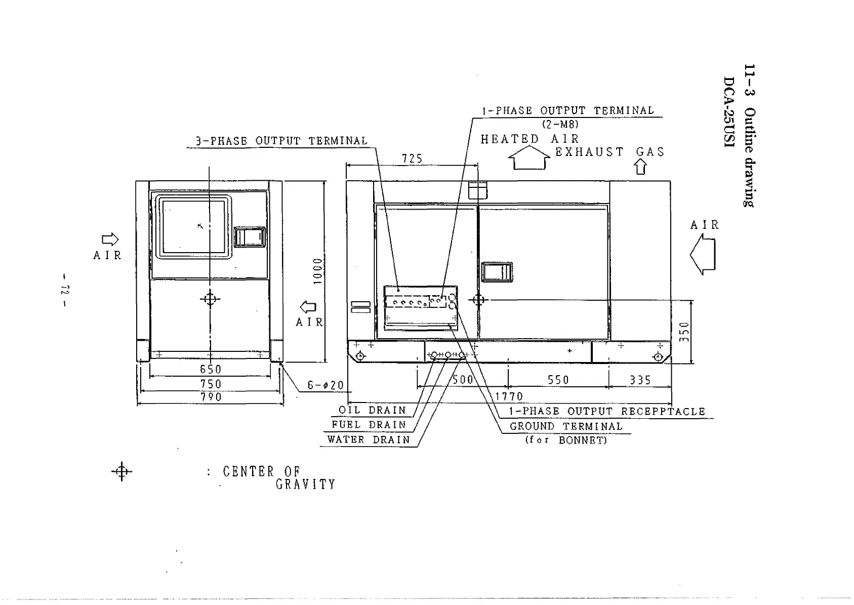
Denyo DCA-25USI - Outline Drawing

Denyo DCA-25USI
90 pages
Print Icon
To Next Page IconTo Next Page
To Next Page IconTo Next Page
To Previous Page IconTo Previous Page
To Previous Page IconTo Previous Page
Loading...
I -PHASE OUTPUT TERMINAL
CENTER OF
GRAVITY
11-3 Outline drawing
DCA-25USI

Table of Contents

Related product manuals