EasyManua.ls Logo

Dexter Laundry WCAD Series - Page 65

Dexter Laundry WCAD Series
96 pages
Print Icon
To Next Page IconTo Next Page
To Next Page IconTo Next Page
To Previous Page IconTo Previous Page
To Previous Page IconTo Previous Page
Loading...
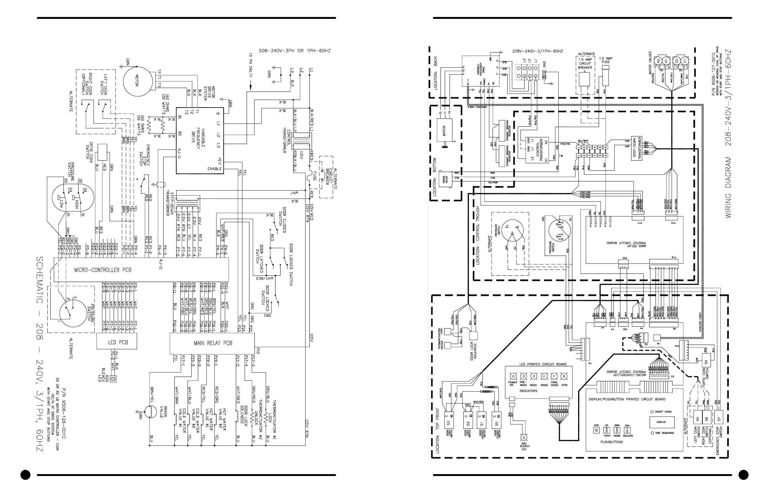
50Lb. Express Coin Micro Switch Schematic 208-240V 50Lb. Express Coin Micro Switch Diagram 208-240V
128 129
Part # 8533-073-001 3/22 Part # 8533-073-001 3/22
Machine
Mounting
Installation
& Operation
Programming
Trouble-
shooting
Machine
Service
Electrical
Wiring
Parts
Data
Coin
Handling
50Hz
Parts
Maintenance
Service Elec.
Compnents

Table of Contents

Other manuals for Dexter Laundry WCAD Series

Related product manuals