EasyManua.ls Logo

DH Instruments PPC2 AF - The Vent Connection (Vent Port); The Autozero Connection (Autozero Port); Power up and Verification; Switch Power on

DH Instruments PPC2 AF
148 pages
Print Icon
To Next Page IconTo Next Page
To Next Page IconTo Next Page
To Previous Page IconTo Previous Page
To Previous Page IconTo Previous Page
Loading...
PPC2 AF OPERATION AND MAINTENANCE MANUAL
© 1998 DH Instruments, Inc. Page 14
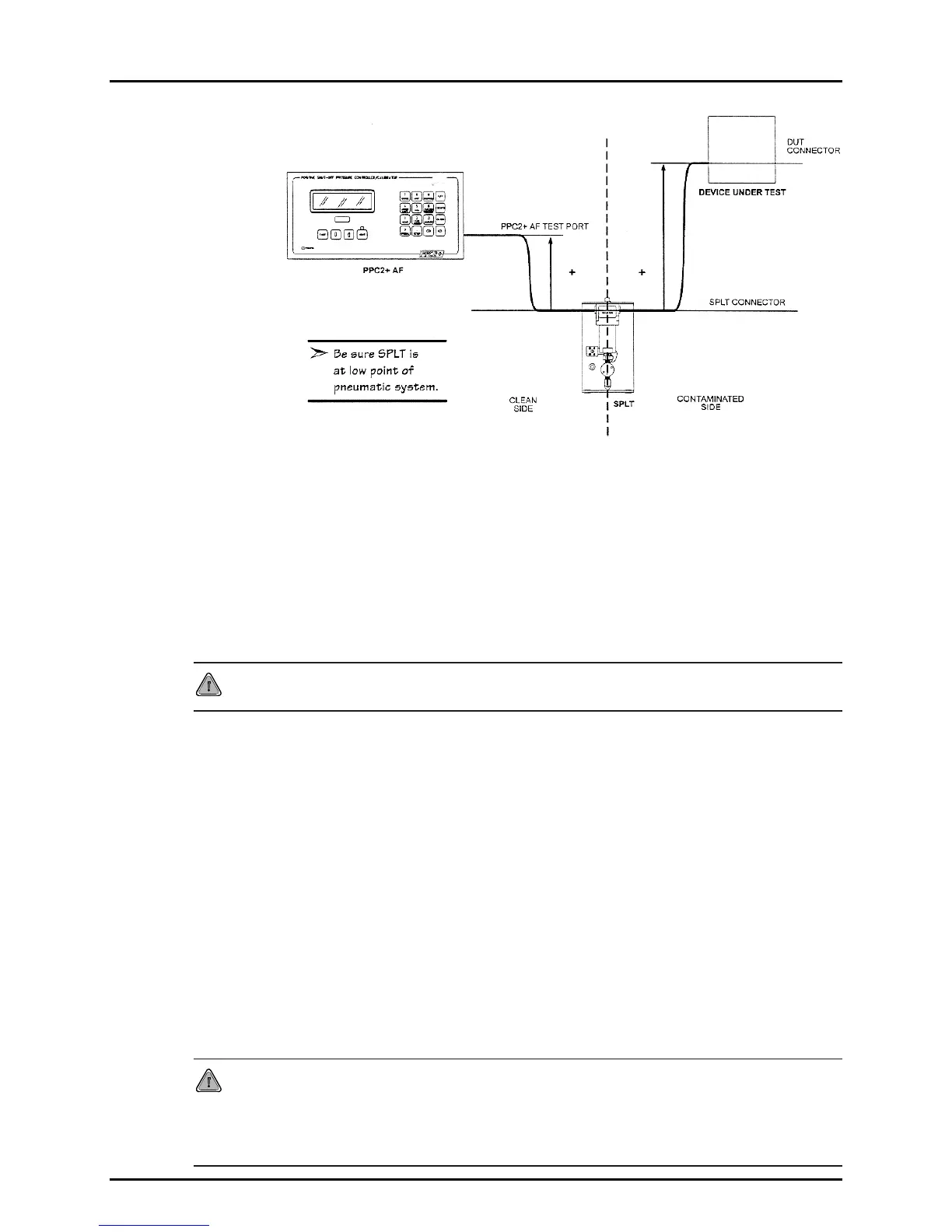
PPC2 AF with SPLT and DUT
2.3.6 THE VENT CONNECTION (VENT PORT)
The PPC2 AF VENT connection is the system vent to atmosphere point used to set zero
gauge pressure and obtain reference pressure transducer measurements of atmospheric
pressure. Though a pressure hose can be connected to the VENT connection to direct the
vented gas flow, a completely unobstructed connection to atmosphere must be obtained for
PPC2 AF reference pressure measurements to operate normally.
The PPC2 AF VENT connection is 1/4 in. NPT female.
Never plug, obstruct or connect a supply pressure to the PPC2 AF vent connection.
2.3.7 THE AUTOZERO CONNECTION (AUTOZERO PORT)
The PPC2 AF AUTOZERO connection is used for the AutoZero by Vacuum function and is
not needed at start up. It should be left open to atmosphere.
2.4 POWER UP AND VERIFICATION
2.4.1 SWITCH POWER ON
Actuate the power switch on the PPC2 AF rear panel. Observe the front panel display as
PPC2 AF initializes, error checks and goes to the main run screen (see Section 3.1.1).
PPC2 AF operating condition at power up is VENT valve closed, Hi reference pressure
transducer active.
If the PPC2 AF fails to reach the main run screen, service is required. Record the sequences
of operation and displays observed.
If the active range on power down was a Hi reference transducer range, the same range will
be active on the next power up. If the active power down range was a Lo reference
transducer range, range H3 will be active on power up. This is to protect the Lo reference
transducer from accidental overpressure (see Section 3.1.2.5).

Table of Contents