EasyManua.ls Logo

Diamond Diagnostics Prolyte - Page 37

Diamond Diagnostics Prolyte
41 pages
Print Icon
To Next Page IconTo Next Page
To Next Page IconTo Next Page
To Previous Page IconTo Previous Page
To Previous Page IconTo Previous Page
Loading...
PROLYTE ANALYZER
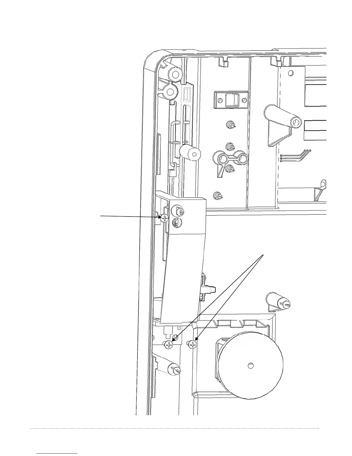
Figure P14 – Probe Motor
Removal/Installation
34