EasyManua.ls Logo

Dometic B2600 - Page 121

Dometic B2600
334 pages
Print Icon
To Next Page IconTo Next Page
To Next Page IconTo Next Page
To Previous Page IconTo Previous Page
To Previous Page IconTo Previous Page
Loading...
manuel d’utilisation
29
F
B1600 - B1600PLUS - B2200 - B2600
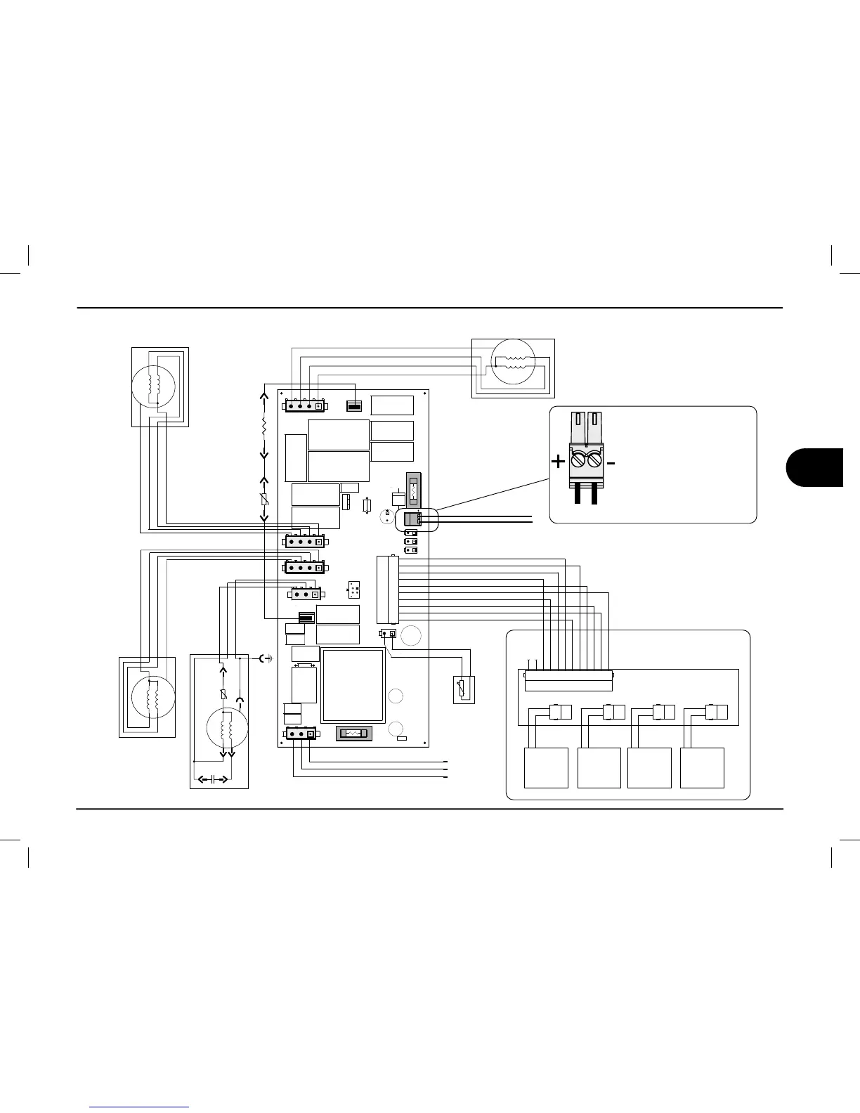
SCHEMA ELECTRIQUE B1600 PLUS / B2200
NWO
R
B
E
U
L
B
N
E
E
RG-WO
L
L
E
Y
C
A
V032
LARTUEN - 2T
*
E
NI
L
-
1
T
*
1
2
3
DNUORG -
3
T
*
1
2
1
2
D
ER
NE
E
RG
N
AY
C
W
OL
L
E
Y
NW
OR
B
E
TIH
W
CK
A
L
B
E
U
L
B
Y
A
RG
TE
LOIV
RED
GREEN
CYAN
YELLOW
BROWN
WHITE
BLAK
BLUE
GRAY
VIOLET
8J
xJ
4C4C
1
2
3
4
5
6
7
8
9
01
3C3C
1
2
3
4
5
6
7
8
9
10
11
12
xJ
xC
1
2
Led
board
xJ
xC
1
2
Led
board
xJ
xC
1
2
Led
board
xJ
xC
1
2
Led
board
AIR DIFFUSER
*
* *
* *
* *
*
ROTSISE
R
T
AEH ROTSISE
R
T
AEH
H
C
T
I
WS O
M
RET H
C
T
I
WS O
M
RET
ORANGE
0/0''
0/0''
&$0/0.:
&$0/0.:
*/7&35&3
*/7&35&3
+
+
+
+
+
+
OPTIONAL CONNECTION
TO SWITCH ON THE AIR
DIFFUSER LIGHT ALSO
WHEN THERE IS NO MAIN.
PLEASE USE THE
PROVIDED CONNECTOR
PLUGGED IN THE BOARD
EUL
B
N
E
E
RG-WO
L
L
E
Y
D
E
R
KN
I
P
HCTI
W
S
OM
RE
T
HCTI
W
S
OM
RE
T
*
2F2F
*
1
2
3
*
4F4F
*
2
x
O 2
x
O
*
*
5F5F
*
F
u
xx F
u
xx
1
xO
1
xO
*
1F1F
*
*
3F3F
**
*
*
1
2
3
4
COMPRESSOR
N
EE
R
G-W
O
L
L
E
Y
N
EE
R
G-W
O
L
L
E
Y
K
C
A
L
B
NW
O
RB
EU
LB
1
2
3
4
FAN2 CONDERNSER
N
EE
R
G-W
O
L
L
E
Y
K
C
A
L
B
NW
O
RB
EU
LB
1
2
3
4
FAN1 CONDERNSER
KCALB
NWO
R
B
EUL
B
FAN EVAPORATOR
+ 12vdc BATTERY
- BATTERY
TEMPERATURE
PROBE
BATTERY
FUSE F2AL250V
MAIN FUSE F10AL250V
."*/'64&
."*/'64&
#"55&3:'64&
#"55&3:'64&
5&.1130#&
5&.1130#&
"694&3*"-
"694&3*"-
#"55&3:
#"55&3:
$0/%'"/
$0/%'"/
$0/%'"/
$0/%'"/
&7"1'"/
&7"1'"/
3&4*4503
3&4*4503
."*/
."*/
3&4*4503
3&4*4503
$0.13&4403
$0.13&4403
3&.05&
3&.05&
+
+
3
3
3
3
5
5
53
53
+
+
$
$
$
$
$
$
$
$
$
$
$
$
$
$
$
$
$
$
$
$
+
+
+
+
+
+
+
+
+
+
+
+
2
2
3M
3M
3M
3M
3M
3M
3M
3M
3M
3M
6
6
3
3
6
6
$
$
$
$
%;
%;
+
+
+"
+"
+#
+#
$
$
$
$
')
')
'
'
'
'
')
')

Table of Contents

Related product manuals