EasyManua.ls Logo

DSE DSE4510 - Dse4510 Typical Wiring Diagram (3 Phase 4 Wire)

DSE DSE4510
88 pages
Print Icon
To Next Page IconTo Next Page
To Next Page IconTo Next Page
To Previous Page IconTo Previous Page
To Previous Page IconTo Previous Page
Loading...
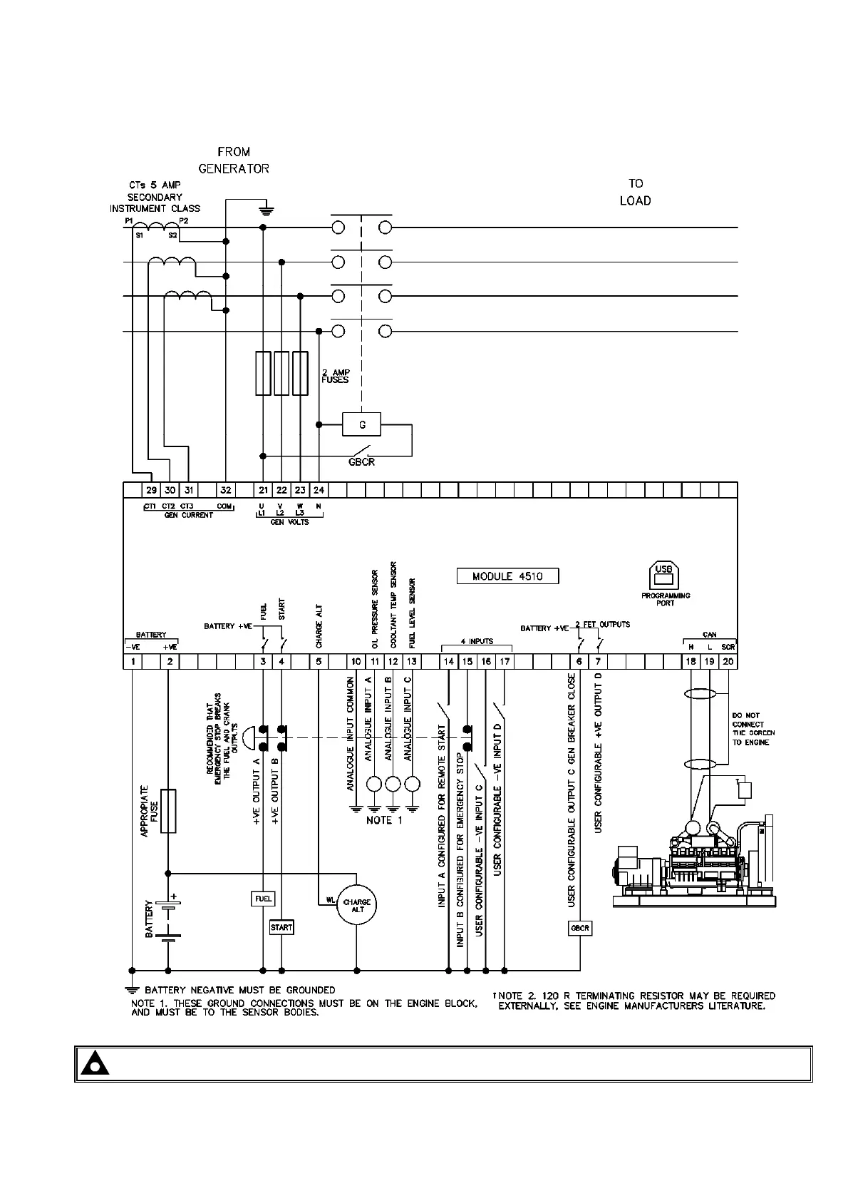
Installation – Typical Wiring Diagrams
32
4.2.1 DSE4510 TYPICAL WIRING DIAGRAM (3 PHASE 4 WIRE)
NOTE: Terminals 29-32 are not fitted on the DSE45xx-01 variant.

Table of Contents

Related product manuals