EasyManua.ls Logo

Dunkirk DCB-125 - 205 With Zone Circulators - Wiring Diagram

Dunkirk DCB-125
139 pages
Print Icon
To Next Page IconTo Next Page
To Next Page IconTo Next Page
To Previous Page IconTo Previous Page
To Previous Page IconTo Previous Page
Loading...
21
ZONE 1
LINE
24V
Vac
L
C
R
115 Vac
NL
1
N
115
COM
Vac
ZRZC
NL
3
NL
2
115 Vac
N
L
1
L
N
ZONE CIRCULATOR
XXXXX
32
1
X
NEC Class 2 Low Voltage
ZONE 3ZONE 2
ZONE 1
W
R
NEC Class 2 Low Voltage
T
T
C
THERMOSTATS
ZONE VALVES
ZONE 3ZONE 2
43214321432
1
NEC Class 2 Low Voltage (24Vac)
W
R
T
T
C
W
R
T
T
C
PRI PUMP ZC/ZR
DIGITAL LCD USER DISPLAY
Fuse
ZONE MODULE
TO EXPANSION
Transformer
PTC
12A 250V
115 Vac FIELD SUPPLIED
POWER PER NEC
AND LOCAL CODES
Z2 Z3
ZONE
THERMOSTATS
12345678910
VAC
24
M2
G
*
M2 terminal strip
on boiler
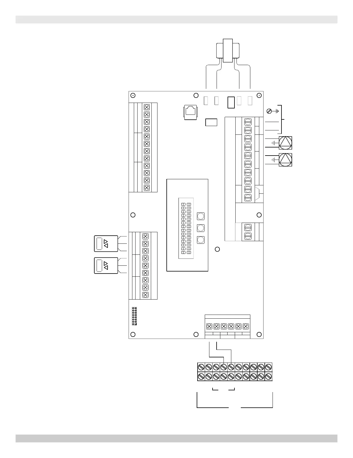
115, 150 & 205 WITH ZONE CIRCULATORS - WIRING DIAGRAM
115, 150 & 205 WITH ZONE CIRCULATORS, ARGO UZ3 ZONE CONTROL
UZ3
PN 240011430 REV. O [07/01/2021]

Table of Contents

Other manuals for Dunkirk DCB-125

Related product manuals