EasyManua.ls Logo

Dunkirk DXL Series - 11 Wiring Diagrams

Dunkirk DXL Series
40 pages
Print Icon
To Next Page IconTo Next Page
To Next Page IconTo Next Page
To Previous Page IconTo Previous Page
To Previous Page IconTo Previous Page
Loading...
25
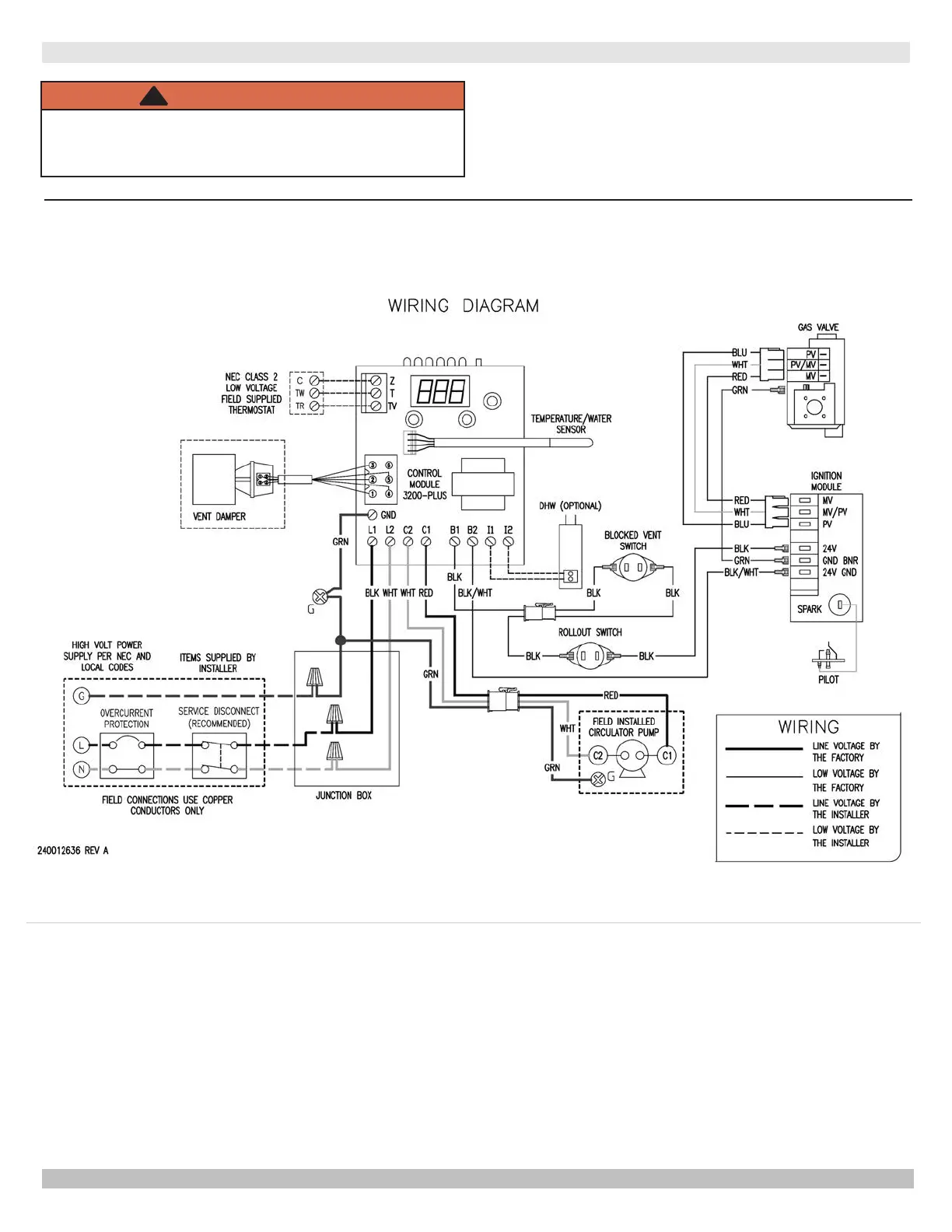
11 - WIRING DIAGRAMS
Figure 11-1 -
3200 Plus Fuel Smart Hydrostat Control
WARNING


result in personal injury or loss of life.
!
PN 240012787 Rev. C [11/15/2020]