EasyManua.ls Logo

Eagle 2000 BWS - Page 46

Eagle 2000 BWS
47 pages
Print Icon
To Next Page IconTo Next Page
To Next Page IconTo Next Page
To Previous Page IconTo Previous Page
To Previous Page IconTo Previous Page
Loading...
- 46 -
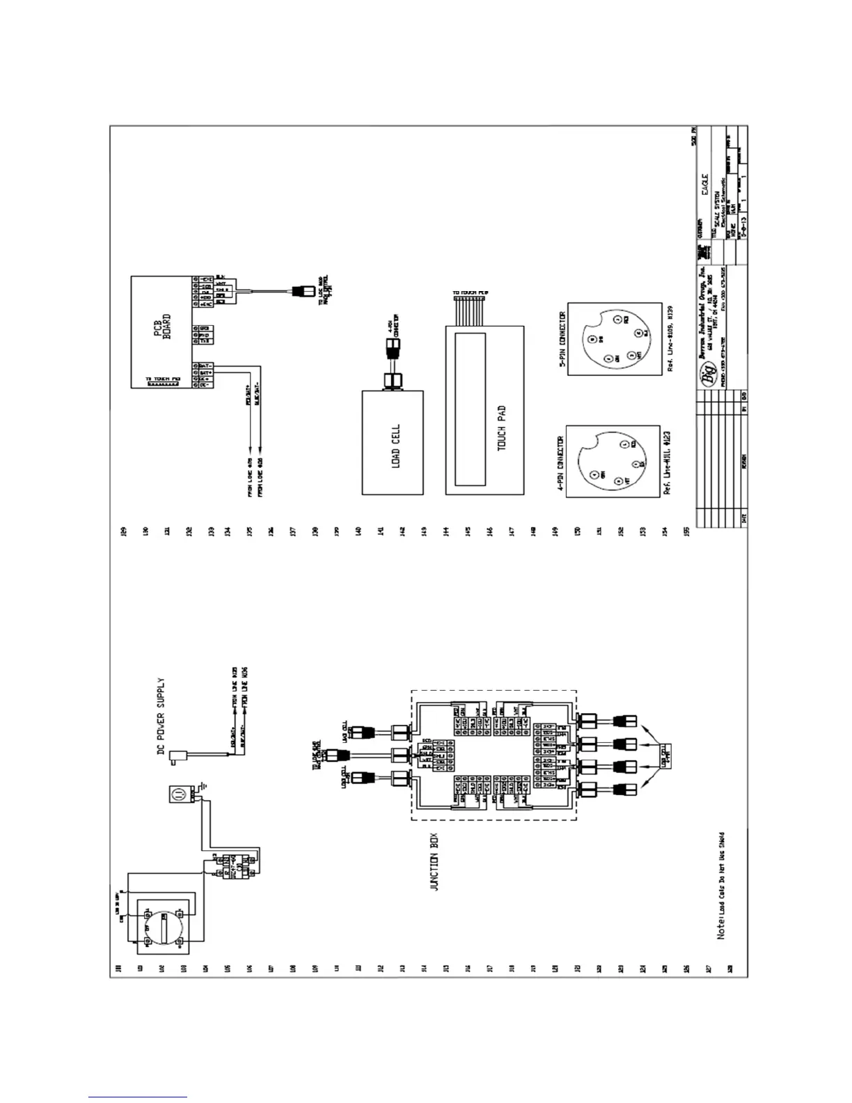
6.6 Optional Scale

Related product manuals