EasyManua.ls Logo

Echo BEAR CAT EGI-2000 - Page 46

Echo BEAR CAT EGI-2000
82 pages
Print Icon
To Next Page IconTo Next Page
To Next Page IconTo Next Page
To Previous Page IconTo Previous Page
To Previous Page IconTo Previous Page
Loading...
37
40
Inverter Generator Owner's Manual
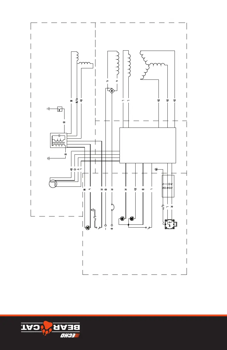
Electrical Schematic Diagram
41
Inverter Generator Owner's Manual
Electrical Schematic Diagram
50Hz, 230V Without Parallel Receptacle
B
Br
G
L
O
R
W
Y
B
/
W
G
/
Y
R
/
W
Black
Brown
Green
Blue
Orange
Red
White
Yellow
Black
/
White
Green
/
Yellow
Red
/
White
KBPC2510
rectifier
lgnition coil
charging
oil sensor
ignition
spark plug
stepper motor speed
DC receptacle
inverter
flameout switch
DC-spoel
Subspoel
Hoofdspoel
GENERATOR BLOCK
ENGINE BLOCK
CONTROL PANEL BLOKC
INVERTER BLOCK
circuit breaker 10A
AC receptacle
ESC switch
oil warning indicator light
overload indicator light
AC pilot light
50Hz, 230V With Parallel Receptacle
circuit breaker 10A
rectifier
lgnition coil
charging
oil sensor
ignition spark plug
stepper motor speed
DC receptacle
inverter
parallel
receptacle
flameout switch
DC-spoel
Subspoel
Hoofdspoel
GENERATOR BLOCK
ENGINE BLOCK
CONTROL PANEL BLOKC
INVERTER BLOCK
B
Br
G
L
O
R
W
Y
B
/
W
G
/
Y
R
/
W
Black
Brown
Green
Blue
Orange
Red
White
Yellow
Black
/
White
Green
/
Yellow
Red
/
White
AC receptacle
ESC switch
oil warning indicator light
overload indicator light
AC pilot light
KBPC2510
• 50Hz, 230V Sans prise en parallèle
schéma dE câblaGE

Related product manuals