EasyManua.ls Logo

EcoWater ECWS - Installation Requirements; Tools and Location Needs

EcoWater ECWS
28 pages
Print Icon
To Next Page IconTo Next Page
To Next Page IconTo Next Page
To Previous Page IconTo Previous Page
To Previous Page IconTo Previous Page
Loading...
4
ECOWATER
SYSTEMS
Installation Requirements
TOOLS NEEDED
Assemble the required tools before starting installa-
tion. Read and follow instructions provided with any
tools listed here.
Screwdriver
Tape measure
Pliers
If using Soldered Copper Pipe
Tubing cutter
Lead-free solder and flux
Propane torch
Emery cloth, sandpaper or steel wool
Misc. copper pipe fittings
If using Threaded Pipe
Pipe cutter or hacksaw
Pipe joint compound
Threading tool
Misc. threaded pipe fittings
If using CPVC Plastic
Pipe cutter
Solvent cement
Hacksaw
Primer
Adjustable wrench
If using Other
Other pipe and fittings suitable for potable water as
required by piping system manufacturer and local
codes and/or ordinances.
LOCATION REQUIREMENTS
Consider the following when selecting an installation
location for the Central Water Filtration System.
Do not operate the Central Water Filtration System
where freezing temperatures occur. Do not
attempt to treat water over 120ºF. Freezing tem-
peratures or hot water damage voids the warranty.
To condition all water in the home, install the
Central Water Filtration System close to the water
supply inlet, and before all other plumbing connec-
tions, except outside water pipes.
A nearby drain is needed to carry away Clean
Rinse discharge water. Use a floor drain, laundry
tub, sump, standpipe, or other options (check your
local codes). See "Air Gap Requirements" and
"Valve Drain Requirements" sections. If a drain is
not available, it is still possible to operate the
Central Water Filtration System in a manual Clean
Rinse mode. See “Operating in Manual Clean
Rinse Mode.” The automatic Clean Rinse must be
disabled if the Central Water Filtration System will
not be connected to a drain (See Page 15).
The Central Water Filtration System works on
24 volt, 60 Hz electrical power only, supplied by a
direct plug-in transformer (included). Provide an
electrical outlet in accordance with NEC and local
codes.
Do not install the Central Water Filtration System
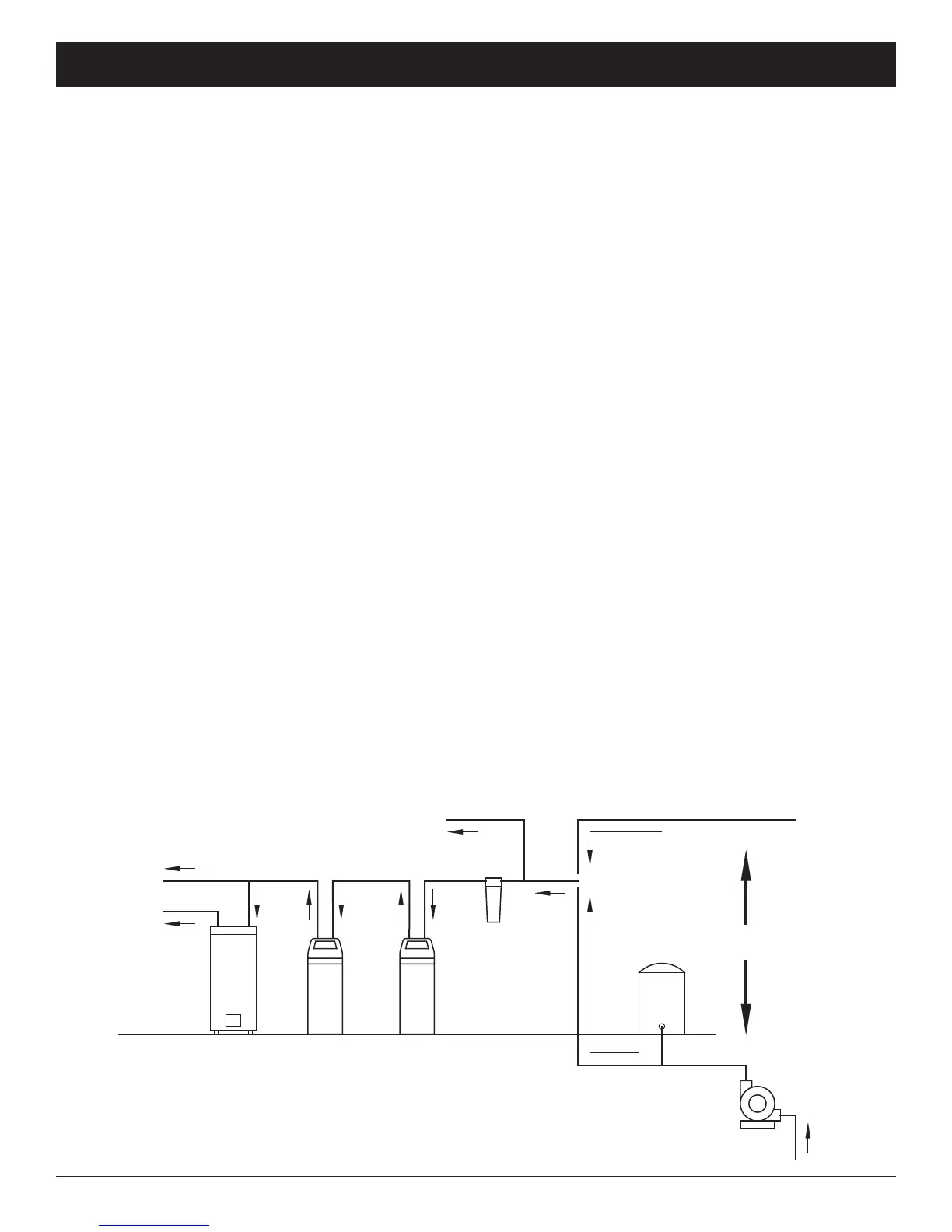
on a hot water line (See Figure 2 below).
Install the Central Water Filtration System between
the home’s incoming water supply and the water
softener, if one is being used (See Figure 2).
THE PROPER ORDER TO INSTALL WATER TREATMENT EQUIPMENT
FIG. 2
Pressure
Tank
City Water Supply
Well Water Supply
Well
Pump
OR
Central
Water
Filtration
System
Optional
Sediment
Filter
Water
Heater
Water
Softener
Untreated Water to
Outside Faucets
Hot Water
to House
Cold Water
to House

Related product manuals