EasyManua.ls Logo

Edwards SIGA-CC2A - Wiring Configurations; SIGA-CC2 A Wiring Details; SIGA-MCC2 A Wiring Details

Edwards SIGA-CC2A
6 pages
Print Icon
To Next Page IconTo Next Page
To Next Page IconTo Next Page
To Previous Page IconTo Previous Page
To Previous Page IconTo Previous Page
Loading...
Page 4 of 6 DATA SHEET E85001-0609
Not to be used for installation purposes. Issue 1
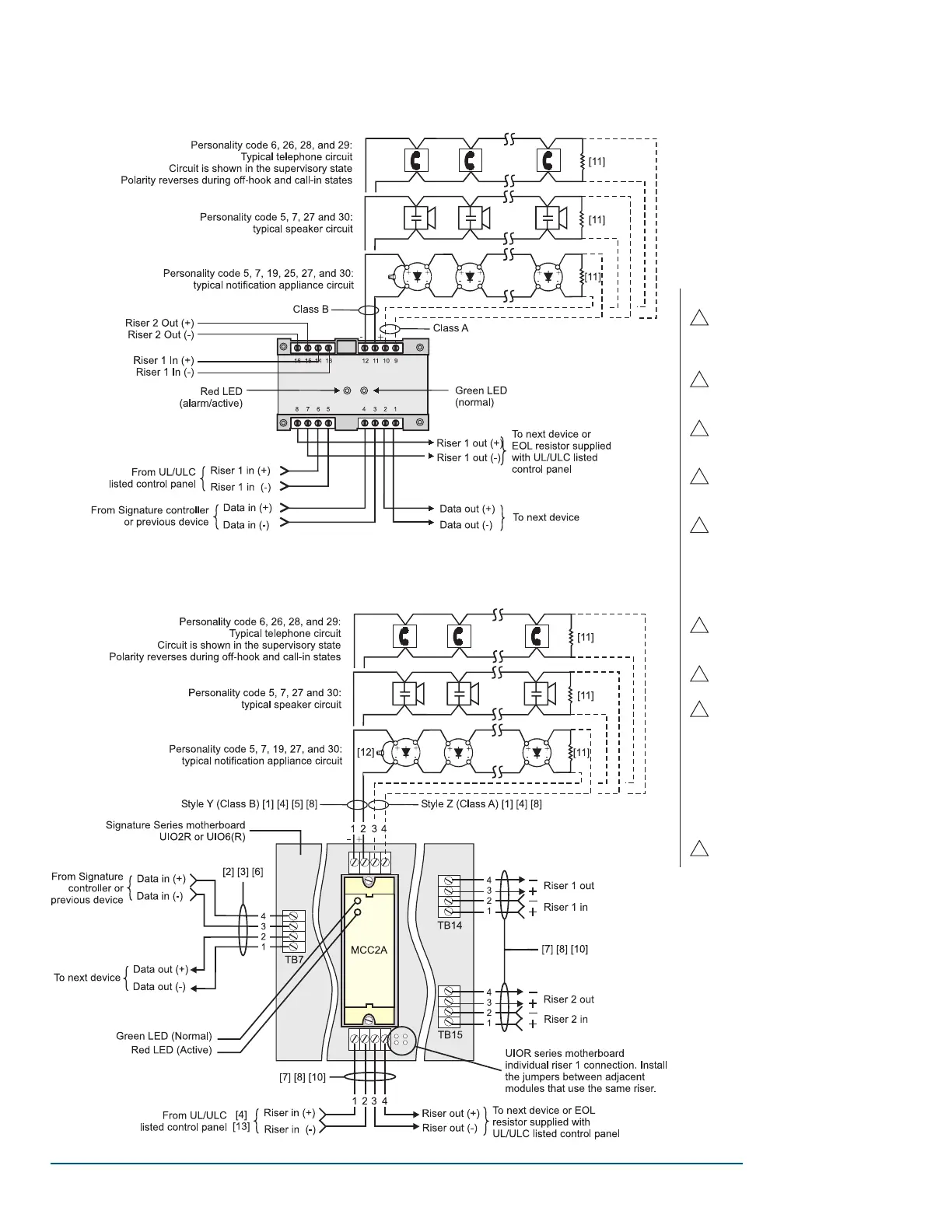
Wiring
Single/Dual input Class A and Class B wiring (personality 5, 7, 19, 25, 27, 30)
Ring tone for three-state and four-state telephone Class A and Class B wiring (personality 6, 26, 28, 29)
SIGA-CC2A
SIGA-MCC2A
Notes
1 For maximum wire resist-
ance and maximum wire
distances, refer to IOMC
Manual (P/N 270144).
2 Maximum #12 AWG
(2.5mm
2
) wire. Min. #18
(0.75mm
2
).
3 Refer to Signature Loop
Controller Installation Sheet
for wiring specifications.
4 These modules will NOT
support two-wire smoke
detectors.
5 All wiring power limited
and supervised. If the input
source is non-power
limited, then maintain spac-
ing of 1/4 inch or use FPL,
FPLP, FPLR or equivalent in
accordance with NEC.
6 The SIGA-UIO6 does not
come with TB8 through
TB13.
7 Supervised and power-
limited.
8 Supervised and power-
limited when connected to
a power-limited source. If
the source is nonpower-
limited, maintain a space of
1/4 inch from power-limited
wiring or use FPL, FPLP,
FPLR, or an equivalent
in accordance with the
National Electrical Code.
9 The input for this riser is
common to all modules.

Related product manuals