EasyManua.ls Logo

Eko-Vimar Orlanski Orlan - Various Other Piping Possibilities

Eko-Vimar Orlanski Orlan
30 pages
Print Icon
To Next Page IconTo Next Page
To Next Page IconTo Next Page
To Previous Page IconTo Previous Page
To Previous Page IconTo Previous Page
Loading...
EKO BOILER
MANU
AL
12
J
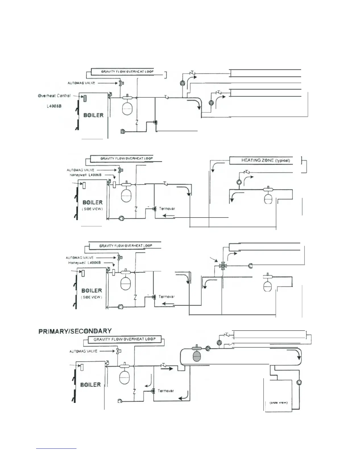
Piping Design Possibilities
ONLY
BO
I
LER
HEATING
ZONE (typloel)
I
SlOe lll(W
l
Tefmovar
HEATING ZONE
(
lyp
l)
._
_.y
PARALLEL
C-3
O...mtat
Co
n
trol
H
ontywell
L<400a8
J
._ _..Y
C-3
O
R
·
Ot
GAS
.f
lP'tED
BOILER
(IIAe v
-
)
AUTO-M
I
X
HEATING ZONE
(
typKA
I)
A.JIO
X
A
-
-NAY
M
IX
"'
::iii
A
.•t
Ovemut
Contro
l
H
oneywell
L<4008B
L----Y
j
C
-
3
O
I
L-er
GAS
-
F
I
RED
BOLEA
(
$>M
-
)
HEATING ZONE
(
typoe.
Q
F'
R
I
MAAY
LOOF'
Overtctat Control
Honeywe
ll
L<4008
8
C
S8EVIEW
)
OIL·
0t
GAS.fiREO
BOILER
'------'y
C
-
3

Table of Contents

Other manuals for Eko-Vimar Orlanski Orlan

Related product manuals