EasyManua.ls Logo

Electra DNC series - Outdoor Unit Dimensions DNC 1155, DNC 1255

Electra DNC series
153 pages
Print Icon
To Next Page IconTo Next Page
To Next Page IconTo Next Page
To Previous Page IconTo Previous Page
To Previous Page IconTo Previous Page
Loading...
INSTALLATION MANUAL
English 5
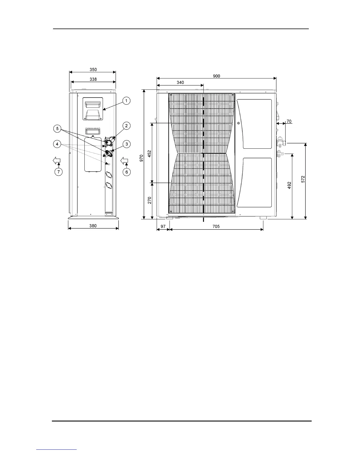
2.3 Outdoor unit dimensions DNC 1155, DNC 1255
1. Wiring connections
2. Suction tube connector (flared)
3. Liquid tube connector (flared)
4. Service valves
5. Service taps
6. Air inlet
7. Air outlet
Fig. 3. General dimensions of DNC 1155, DNC 1255 outdoor units

Table of Contents

Related product manuals