EasyManua.ls Logo

Electronics International CGR-30C - Page 29

Electronics International CGR-30C
68 pages
Print Icon
To Next Page IconTo Next Page
To Next Page IconTo Next Page
To Previous Page IconTo Previous Page
To Previous Page IconTo Previous Page
Loading...
22
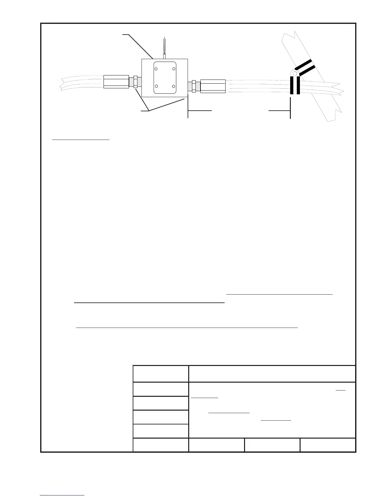
(IN)
(OUT)
Fuel Flow Transducer
Adapter, (1/4" NPT to Fuel Hose)
6" Maximum from
support or fitting
Mounting Procedure:
1. Find a convenient location within 6" of a hose support or fitting and away from any hot exhaust
pipes to suspend the Fuel Flow Transducer. The hose support or fitting may be on the input or
output line of the Flow Transducer and the support may be to an adjacent hose.
2. Remove the return fuel hose which goes from the Carburetor to the Fuel Tank.
3. Purchase two new hoses: one to be used from the Carburetor to the Fuel Flow Transducer and the
other to be used from the Fuel Flow Transducer to the Fuel Tank. There must be flexible hose
in and out of the Transducer. The hoses must meet TSO-C53a Type C or D FAA specifications.
The new hoses must be the same size as the current hose in the aircraft. Sources of fittings
and fabricated hoses are:
To the Fuel Tank
Fuel return line from
the Carburetor
4. Mount the Fuel Flow Transducer in the fuel return line.
You must use the FT-90 (Gold Cube
Fuel Flow Transducer on any engine over 350 H.P. If the Transducer is mounted within
6" of an exhaust pipe, the Flow Transducer must be wrapped with Fire Sleeving.
5. Read the Installation Instructions for important installation considerations.
Sacramento Sky Ranch Inc.
(916) 421-7672
Fax: (916) 421-5719
Varga Enterprises Inc.
(602) 963-6936
FAX: (602) 899-0324
OR
OR
Hoses Unlimited Inc.
(510) 483-8521
Fax: (510) 483-8524
10/15/94
R.R.
R.R.
None
Installation of a Fuel Flow Transducer suspended in the fuel
return line from the carburetor to the fuel tank.
Note: Only applicable for installation on aircraft with a fuel
return line from the Carburetor.
10159411015941
10159411015941
1015941
A: 7/2/02
Drawn By:
Electronics International Inc.
Approved By:
Scale:
Material:
Next Assembly:
P/N: Date: Rev: D/N:

Table of Contents

Related product manuals