EasyManua.ls Logo

Emerson Copeland Scroll XFAM Series - 9. Wiring Diagrams; Controller Terminal Connections; High Voltage Connections

Emerson Copeland Scroll XFAM Series
35 pages
Print Icon
To Next Page IconTo Next Page
To Next Page IconTo Next Page
To Previous Page IconTo Previous Page
To Previous Page IconTo Previous Page
Loading...
17
AE5-1412 R1
© 2016 Emerson Climate Technologies, Inc.
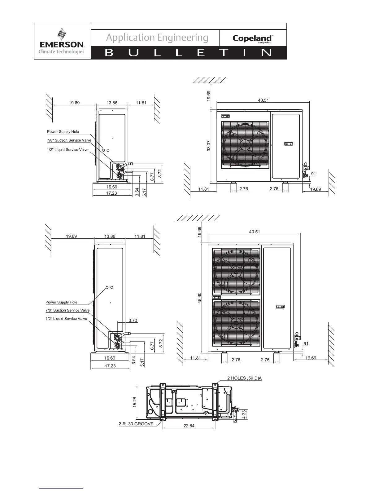
Single Fan Unit
1.5-3 HP
Dual Fan Unit
4- 6 HP
Bottom View
All Models
Figure 1
8. Physical and Installation Requirements

Table of Contents

Related product manuals