EasyManua.ls Logo

Emerson unidrive m200 - SI Option Module Installation (M600-M810)

Emerson unidrive m200
40 pages
To Next Page IconTo Next Page
To Next Page IconTo Next Page
To Previous Page IconTo Previous Page
To Previous Page IconTo Previous Page
Loading...
Electronic Bypass Controller Installation and Commissioning Guide 11
Connect the main power supply, motor and control wiring using the following
recommended conduit locations. The input phase sequence does not affect the
output phase sequence of the VFD. It will affect bypass sequence and motor rotation
direction.
Industrial Automation
TM
WARNING
WARNING
Potentially hazardous voltage
can exist within this device. Only fully trained, qualified personnel should
service this equipment.
Pressing the stop button will not remove power from this equipment.
Never service this equipment without first being sure all power is safely
removed. Hazardous voltage levels may exist for up to 5 minutes after
power is disconnected!
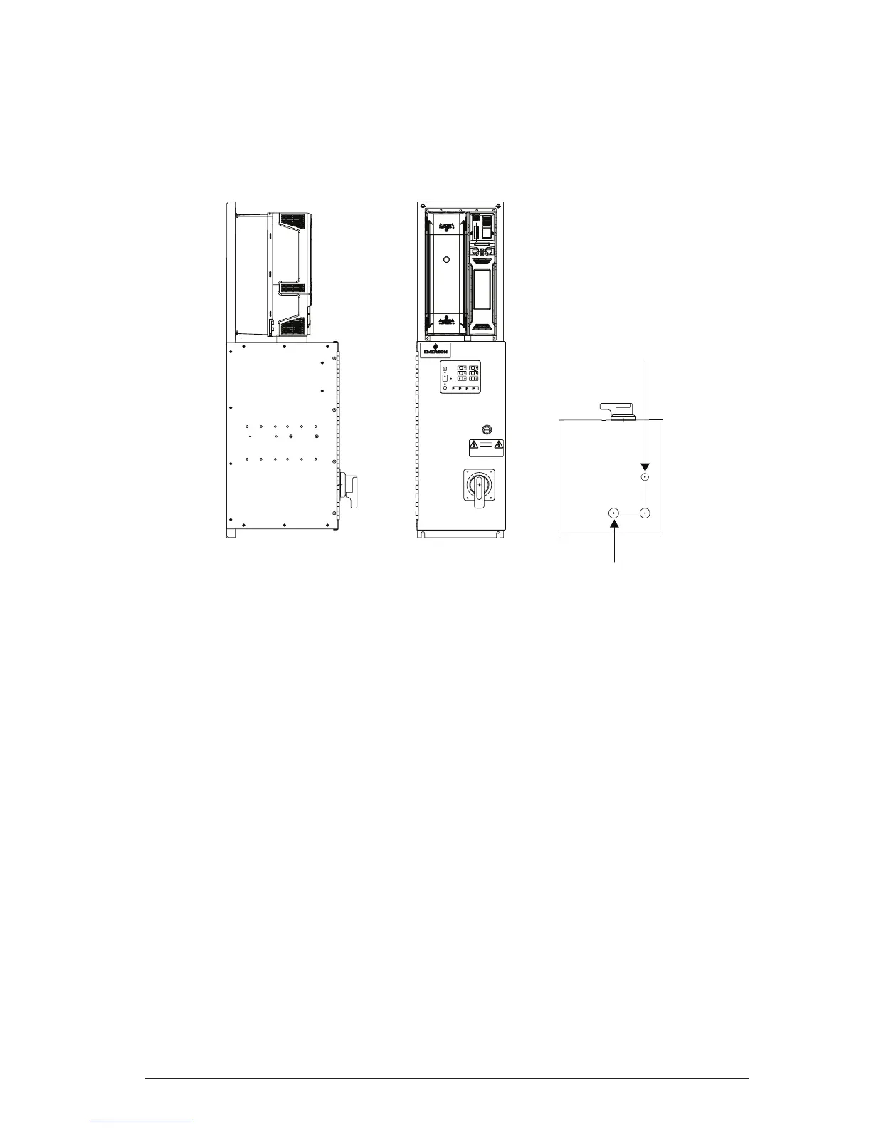
Recommended conduit
entrance control wir
e
Recommended conduit
entrance - motor connection
2.5.3 Output Wiring
The electronic bypass package is always supplied with a Class 10 motor O/L on its
output. However, the unit may be supplied with several different output options. The
following output options are available.
Single motor O/L (Terminals T1, T2, and T3)
Dual motor O/L (Terminals (Motor 1 – T1, T2, and T3)
(Motor 2 – T4, T5, and T6))
Output reactor
Note: All contactors and relays supplied in the electronic bypass package are
suppressed with R/C snubbers. If adding additional inductive loads (i.e. magnetic
contactors, magnetic relays, magnetic valves, solenoids, magnetic brakes, etc.) in or
near the electronic bypass package, use an appropriate surge suppressor across the
coils to limit the transients on the supply lines.

Table of Contents

Other manuals for Emerson unidrive m200

Related product manuals