EasyManua.ls Logo

EPOS Odysse - Jumper Settings

EPOS Odysse
58 pages
Print Icon
To Next Page IconTo Next Page
To Next Page IconTo Next Page
To Previous Page IconTo Previous Page
To Previous Page IconTo Previous Page
Loading...
40
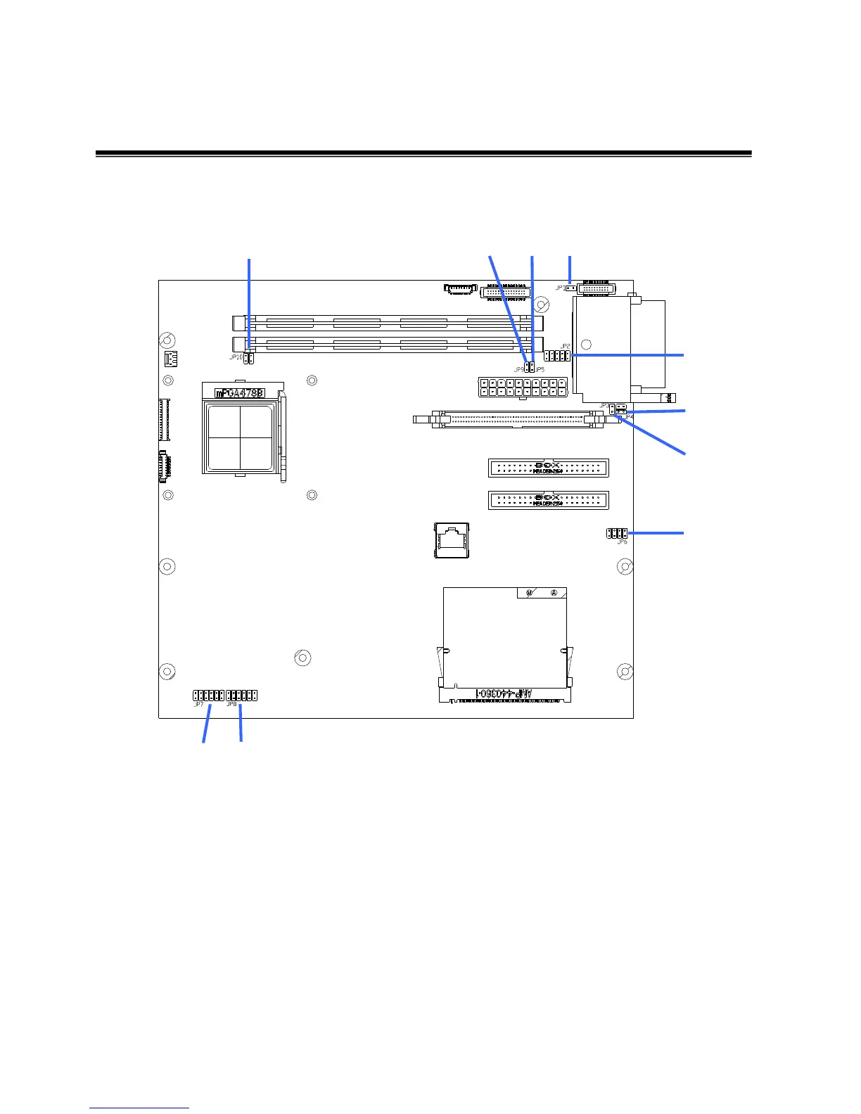
6. Jumper Settings
Main Board
JP1
JP2
JP5
JP9
JP3
JP4
JP6
JP7
JP8
JP10