EasyManua.ls Logo

Epson BrightLink 710Ui - Installation Worksheet for Projecting on a Pre-Installed Wall-Mounted Board

Epson BrightLink 710Ui
92 pages
To Next Page IconTo Next Page
To Next Page IconTo Next Page
To Previous Page IconTo Previous Page
To Previous Page IconTo Previous Page
Loading...
14
Installation worksheet for projecting on a pre-installed wall-mounted
board
If you want to install the Touch Unit outside of the frame of a whiteboard, use the
included Touch Unit Bracket. If the distance from the wall to the surface of the
whiteboard is greater than 2 inches (51 mm) or the frame of the whiteboard extends
more than 0.1 inch (3 mm) away from the board surface, you must install the Touch
Unit on the whiteboard or screen.
See the documentation included with your projector for details on mounting the
Touch Unit.
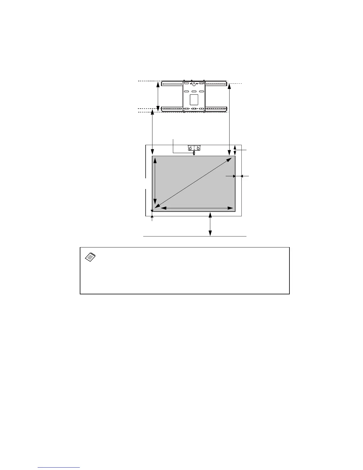
1. Measure the ceiling height (distance from the floor to the ceiling). _____
2. Measure the height of the board’s image area (h). _____ (h)
3. Measure the width of the board’s image area (w). _____ (w)
4. Measure the distance from the floor to the bottom of the board’s image area (f). _____ (f)
5. Measure the thickness of the board (distance from the projection surface to the wall)
(x).
_____ (x)
6. Determine the aspect ratio of the board or of the images that will be projected. For
new computers or laptops, this will most likely be WXGA or WUXGA (16:10). For older
equipment, this will most likely be XGA (4:3). You may need to consult your IT
department for this information.
___ 4:3 XGA ___ 16:10 WXGA/WUXGA ___ 16:9 Widescreen
If your desired aspect ratio does not match the native aspect ratio of your product,
use the Throw Distance Calculator at www.epson.com/support (U.S.),
www.epson.ca/support (Canada), or www.epson.com.jm (Latin America) to
determine the correct measurements.
10 in. (254 mm)—height of
wall plate plus cover
Required distance from top
of image area to bottom
holes of wall plate (c)
Diagonal size of
image area (S)
Height of
image area (h)
Width of image area (w)
Distance from floor to
bottom of image area (f)
4.0 in. (100 mm)—
minimum distance
from edge of image
area to edge of board
1.0 to 4.0 in. (25 to 100 mm)—
distance from top of image area to
bottom of Touch Unit (if applicable)
0.8 in. (20 mm)—
minimum distance
from bottom of image
area to bottom of
board
4.7 in. (120 mm)—
minimum distance
from top of image
area to top of board
(Touch Unit only)
Distance from top of
image area to
temporary wall plate
hole (d)

Other manuals for Epson BrightLink 710Ui

Related product manuals