EasyManua.ls Logo

Epson LS20-BA04S - Wiring Diagrams; Signal Cable

Epson LS20-BA04S
188 pages
Print Icon
To Next Page IconTo Next Page
To Next Page IconTo Next Page
To Previous Page IconTo Previous Page
To Previous Page IconTo Previous Page
Loading...
Maintenance 4. Cable
82
LS20-B R ev.4
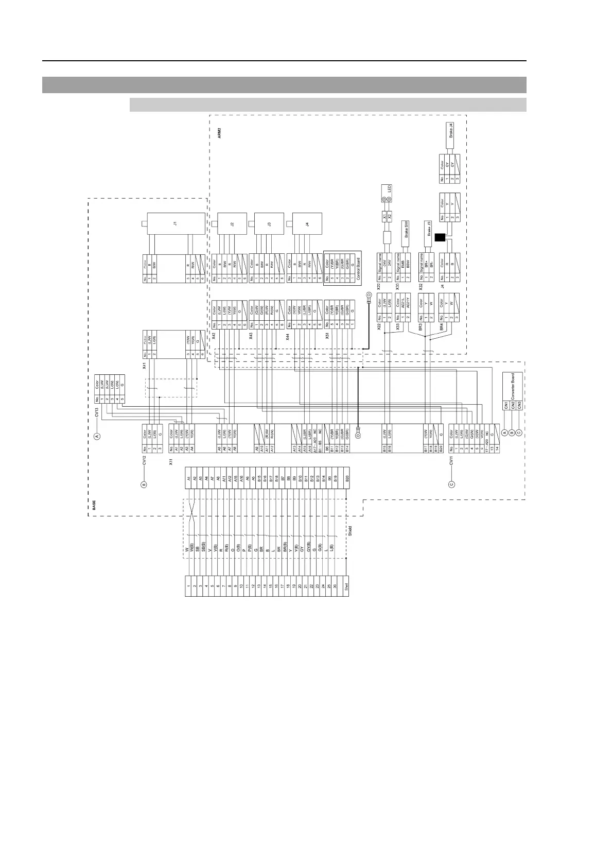
4.2 Wiring Diagrams
4.2.1 Signal Cable

Table of Contents

Related product manuals