EasyManua.ls Logo

ESAB Mig 325 - Page 13

ESAB Mig 325
17 pages
Print Icon
To Next Page IconTo Next Page
To Next Page IconTo Next Page
To Previous Page IconTo Previous Page
To Previous Page IconTo Previous Page
Loading...
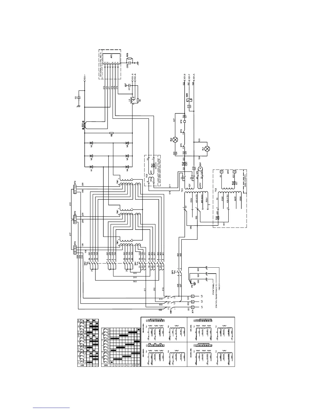
325diag
– 139 –
DIAGRAM 230–500V

Related product manuals