EasyManua.ls Logo

ESP Enterview MX EVMX2 - Wiring and Diagrams; Wiring the External Call Station

ESP Enterview MX EVMX2
16 pages
Print Icon
To Next Page IconTo Next Page
To Next Page IconTo Next Page
To Previous Page IconTo Previous Page
To Previous Page IconTo Previous Page
Loading...
5
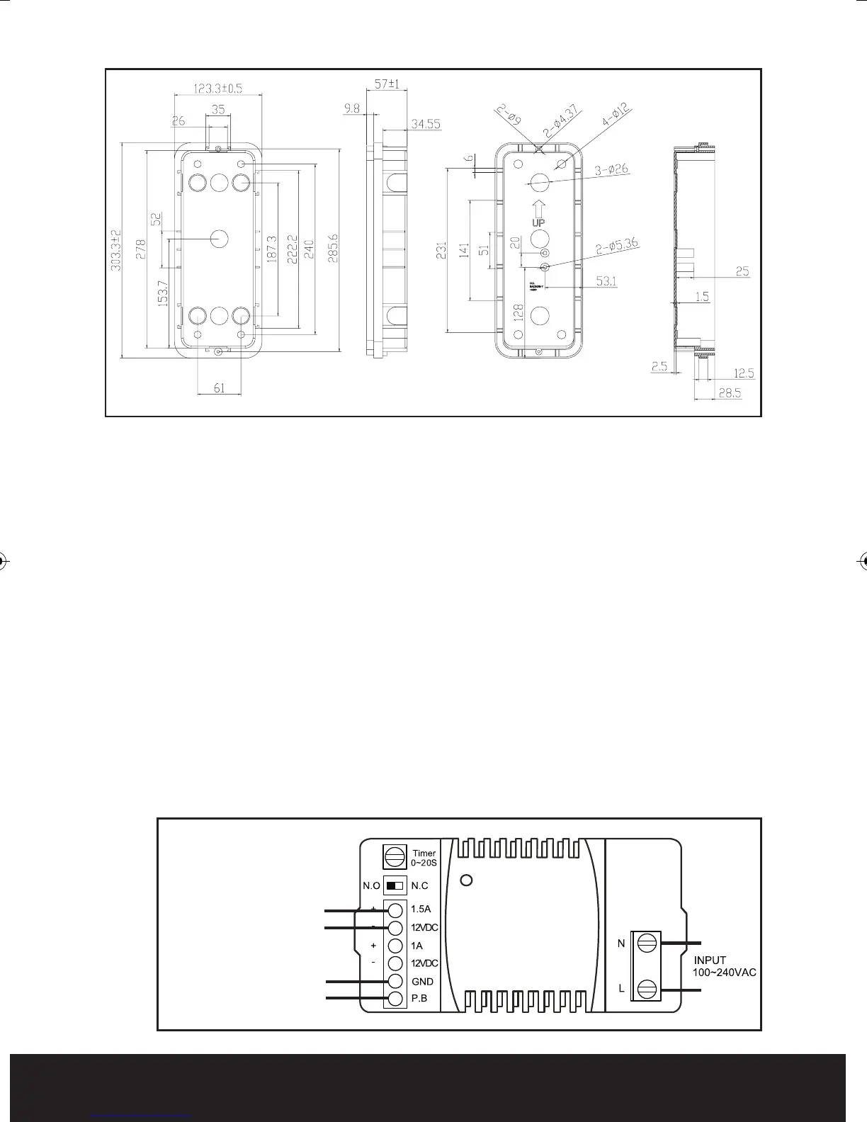
Fig. 2
Wiring the external call station
Each call button will have its own brown 4 core connector (supplied) consisting of
red, blue, yellow and white cores.
The 4 colours that are connected to the brown connector are to be connected to
the corresponding 4 core cable going to each of the apartments.
The connection can be completed by means of soldering, crimping or by use of
screw connectors.
To power
the camera, keypad and call station a 12 volt DC feed is required. To do
this a white two pin plug consisting of red and black cores supplied should be
connected to the corresponding cable going to the EVBPS power supply. Connect
to terminals 3 and 4 (DC 12V) in the EVBPS Fig. 3. Fit the white plug into the white
2 pin socket located at the lower part of the door station Fig. 4.
Th
e two single black
cab
les on the external call station are for the lock release.
These are volt free and are normally open going closed. These contacts will
change state on the lock release command. The two black cables from the hand
sets need to be connected to the 4 core cable going to the EVBPS and connected
to terminals 5 and 6 (P.B) on the EVBPS Fig. 3.
1
2
3
4
5
6
Fig. 3
Connect two black
wires from Main Panel
Connect to
Door Lock
Enterview MX Manual_Layout 2 07/10/2013 14:59 Page 5

Related product manuals