EasyManua.ls Logo

Extrel MAX300-RTG - Page 10

Default Icon
87 pages
Print Icon
To Next Page IconTo Next Page
To Next Page IconTo Next Page
To Previous Page IconTo Previous Page
To Previous Page IconTo Previous Page
Loading...
MAX300-RTG: Installation Manual Hardware Installation
10
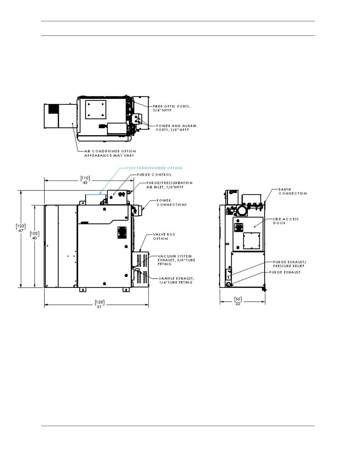
Figure 3: Layout of the ATEX/IECEx Zone 1/Class I Div 1 unit (230V or 115V), without
cart option