EasyManua.ls Logo

Extrel MAX300-RTG - Page 14

Default Icon
87 pages
Print Icon
To Next Page IconTo Next Page
To Next Page IconTo Next Page
To Previous Page IconTo Previous Page
To Previous Page IconTo Previous Page
Loading...
MAX300-RTG: Installation Manual Hardware Installation
14
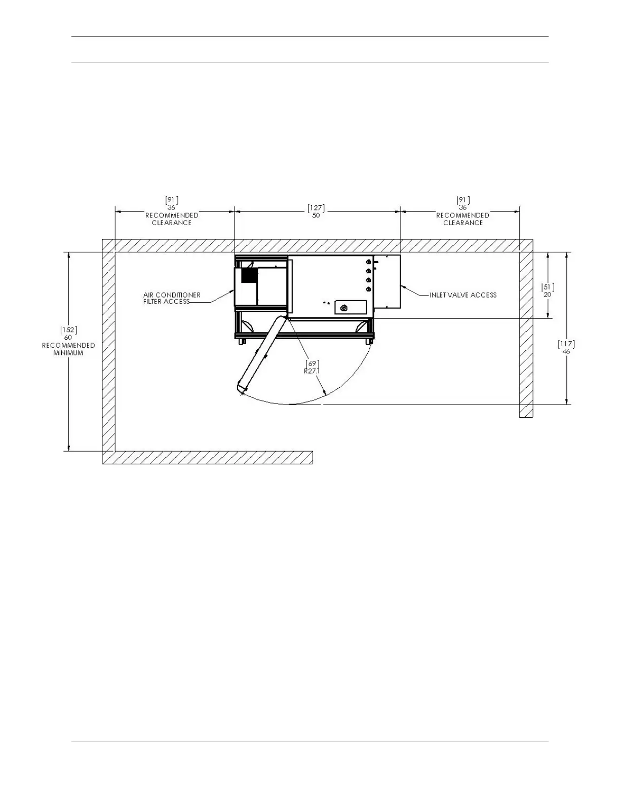
Figure 7: Installation Clearances