EasyManua.ls Logo

Extrel MAX300-RTG - Page 43

Default Icon
87 pages
Print Icon
To Next Page IconTo Next Page
To Next Page IconTo Next Page
To Previous Page IconTo Previous Page
To Previous Page IconTo Previous Page
Loading...
MAX300-RTG: Installation Manual Hardware Installation
43
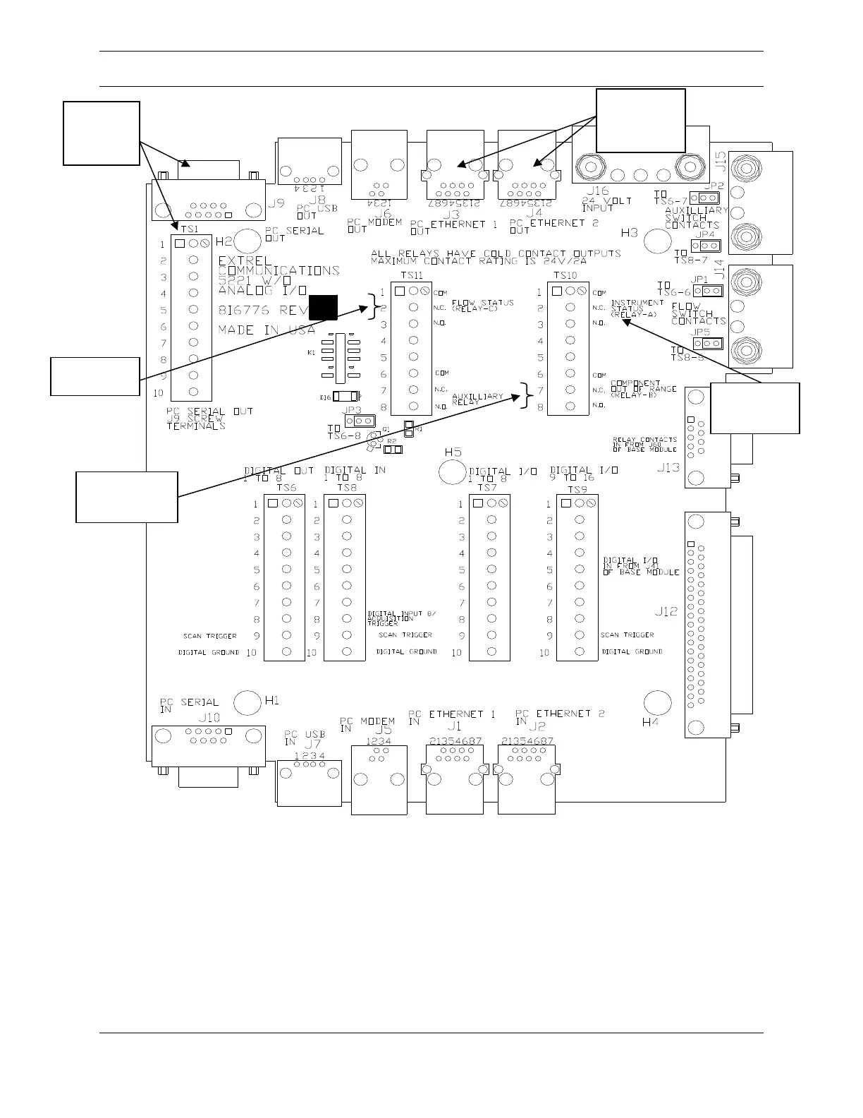
Figure 20: External Communications Circuit Board
RJ - 45
Jacks for
LAN
Instrument
Status
Flow status
Out of Range
Component