EasyManua.ls Logo

FAAC 950 BM - Page 4

FAAC 950 BM
27 pages
Print Icon
To Next Page IconTo Next Page
To Next Page IconTo Next Page
To Previous Page IconTo Previous Page
To Previous Page IconTo Previous Page
Loading...
4
FAAC MODEL 950 BM Door Operator
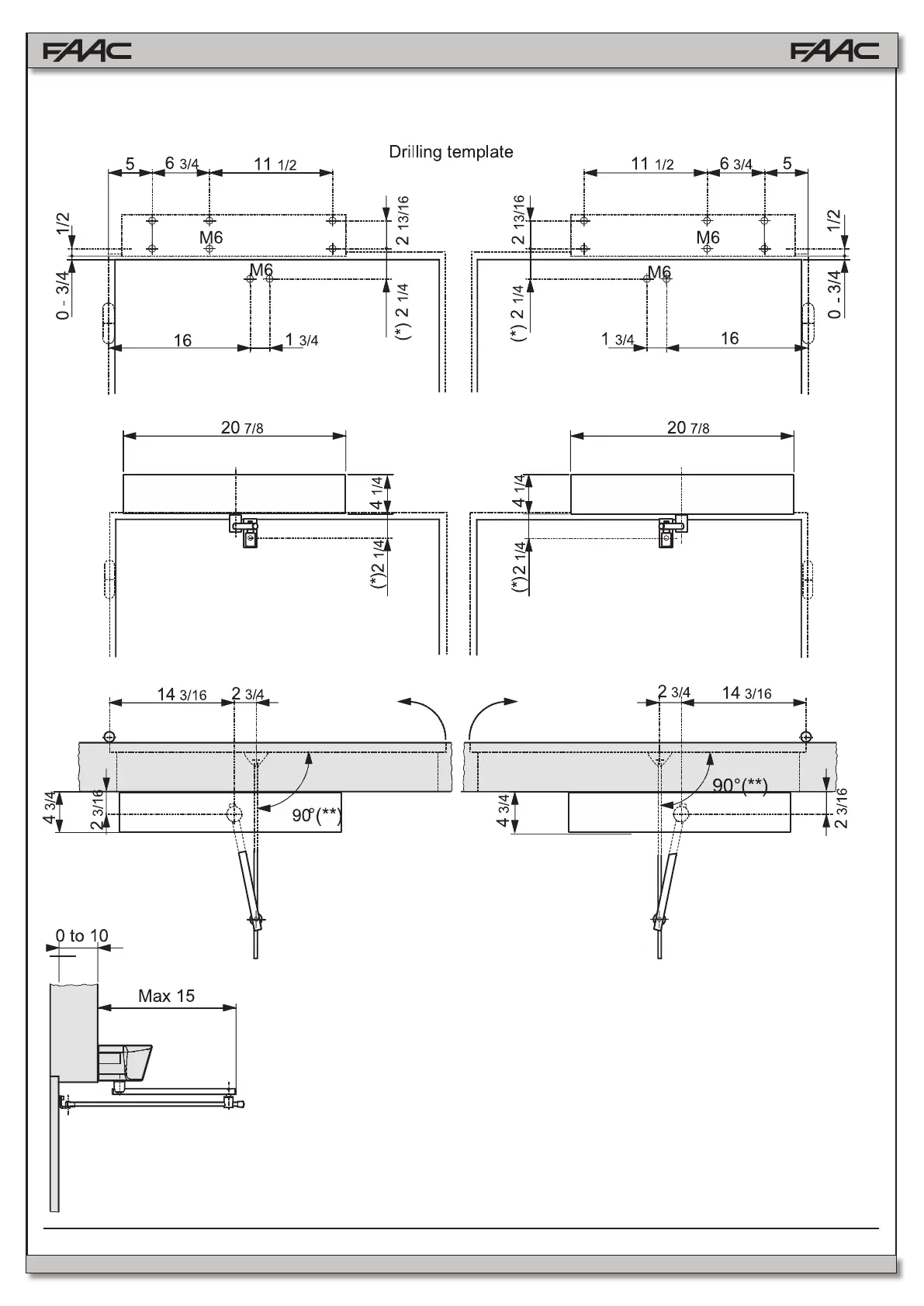
(*) Distance with standard extension.
If a greater distance between the
operator and the arm is required,
add the optional modular extensions.
Each modular extension increases
the standard height of 1 1/8 inches.
It is not rccommended to use more than
2 extensions.
TABLE A: LINTEL MOUNTING (PUSHING ARTICULATED ARM)
Dimensions in inches
(800) 878-7829
www.FastGateOpeners.com

Other manuals for FAAC 950 BM

Related product manuals