Home
Fahrenheit Technologies
Furnace
Endurance 50F
Page 28 (Wiring Schematic)
Fahrenheit Technologies Endurance 50F - Wiring Schematic
36 pages
Manual
Save Page as PDF
To Next Page
To Next Page
To Previous Page
To Previous Page
Loading...
28
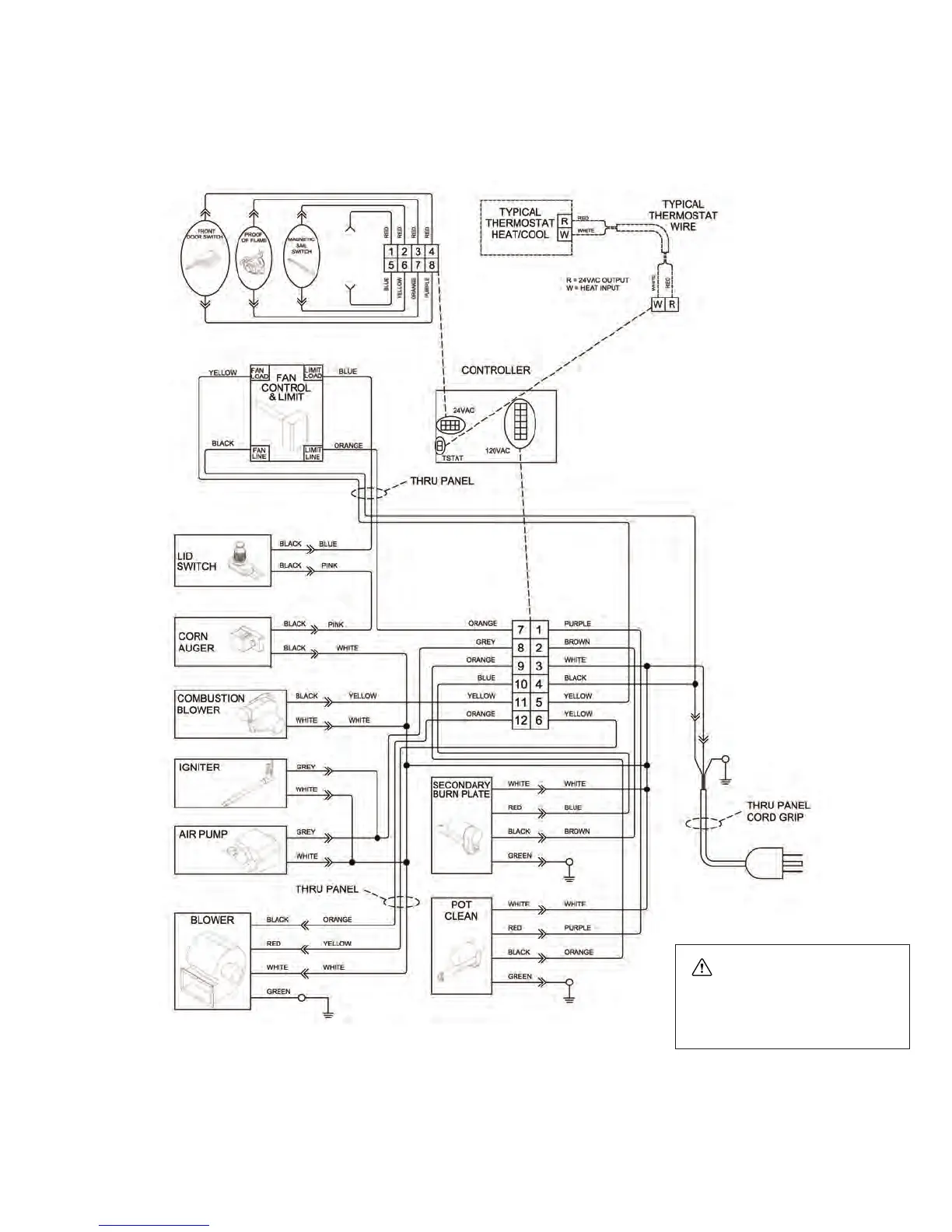
WIRING SCHEMA
TIC
ENDU
RAN
CE 5
0F
W
IRING S
CHEM
A
TIC
Theelectricalratingforthisfurnaceis:115V
olt,60Hz,4AMP
.Theminimumcircuitis15AMP
.
CA
UTION
Call your local dealer for
diagnostics and replacement
of electrical components.
27
29
Table of Contents
Main Page
Safety Information
2
Table of Contents
3
Introduction
4
Location
6
Installation Location
6
Installation Requirements
6
Venting
7
Termination Requirements & Clearances
8
Venting into an Existing Chimney
9
Combustion Air
9
Installation
10
Connecting To Existing Duct Work & Furnaces
10
Mobile Home Installation
11
Installation as a Stove
11
Connecting to the Thermostat
12
Approved Fuel Types
13
Operating Instructions
14
Control Board Features
15
Control Board Operation
16
Auto Ignition
17
Manual Ignition
18
Error Descriptions
19
Combustion Air Damper/Box
19
Adjustments
20
Cleaning Requirements
21
Periodic Maintenance
22
Annual Maintenance
23
Burn Pot Removal & Installation
24
Pot Frame Removal
26
Igniter Replacement
27
Wiring Schematic
28
Canadian Requirements
29
Additional Canadian Installation Requirements
29
Additional Canadian Operation Requirements
29
Additional Canadian Requirements for
30
Troubleshooting & Faq
31
Limited Warranty
33
Part List
34