EasyManua.ls Logo

Fahrenheit Technologies Endurance 50F - Location; Installation Clearances and Requirements

Fahrenheit Technologies Endurance 50F
36 pages
Print Icon
To Next Page IconTo Next Page
To Next Page IconTo Next Page
To Previous Page IconTo Previous Page
To Previous Page IconTo Previous Page
Loading...
6
LOCATION
Installation Requirements
Installation Location
Consider the Following
The front door opens smoothly to allow access to the ash pan
and the fire chamber door for routine maintenance. The Con-
trol Board is mounted on the left side. There are also 2 access
panels on the left side. The upper cover gives you access to
the Fan Limit Control. The lower cover gives you access to the
igniter. The right side access panel allows for removal of com-
bustion blower and proof of flame switch. Removing the air
filter and brackets will allow access to the convection blower.
Removal of the rear maintenance panel will allow access to the
actuators and auger motor.
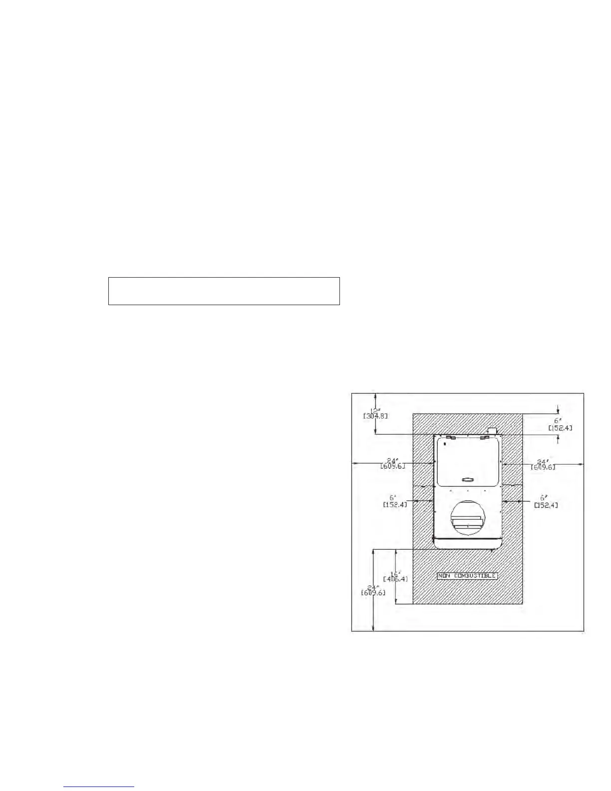
Floor Protection
The furnace should be installed on a non-combustible surface
extending 16" in front of the unit and 6" on either side.
Chimney connectors must have floor protection underneath
extending 2" either side.
Right Side – 2" minimum clearance from combustibles and/
or 24" to allow for furnace maintenance.
Left Side – 24" minimum clearance from combustibles and to
allow for furnace maintenance.
Front – 24" minimum clearance from combustibles and to
allow furnace maintenance.
Back Side – 6" minimum clearance from combustibles and/
or 12" to allow for furnace maintenance.
Clearances and Access for Service and Maintenance
Access for Service and Maintenance
The clearances shown above are for maintenance and are only
recommendations; user may use own discretion.
Clearances to combustible must be maintained.
Supply Air. The 50F furnace may be connected to a gas, oil,
or electric/heat pump system with existing duct work.
Return Air. The furnace does not need to be connected direct-
ly to the existing cold air return system, but it is recommended.
Venting. The location should be as close as possible to an
outside wall for venting purposes. The furnace has a 3" collar;
therefore the use of a 3" to 4" increaser will be required. The
furnace must be vented with a 4" diameter vent system. The
shortest vent system with minimal elbows is the best.
Electrical. This unit requires 115v. and comes with a 6 ft.
AC Cord.
•Refertomarkingonthefurnaceforadditionalinformation.
Surge protector is recommended!
Figure 3
ENDURANCE 50F LOCATION