EasyManua.ls Logo

Fahrenheit Technologies Endurance 50F - Termination Requirements & Clearances

Fahrenheit Technologies Endurance 50F
36 pages
Print Icon
To Next Page IconTo Next Page
To Next Page IconTo Next Page
To Previous Page IconTo Previous Page
To Previous Page IconTo Previous Page
Loading...
8
Termination Requirements & Clearances
In determining optimum vent termination,
carefully evaluate external conditions
especially when venting directly through
a wall. Since you must deal with odors,
gases and fly ash, consider aesthetics,
prevailing winds, distances from air
inlets and combustibles, location of ad-
jacent structures and any code require-
ments.
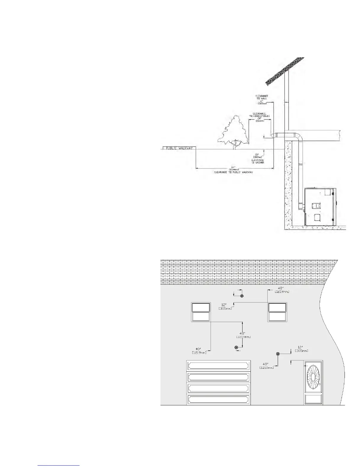
1. Exhaust must terminate above com-
bustion air inlet elevation.
2. Do not terminate vent in any enclosed
or semi-enclosed area, (i.e. carports,
garage, attic crawl space, etc.) or
any location that can build up a con-
centration of fumes.
3. Vent surfaces can get hot enough to
cause burns if touched by children.
Non-combustible shielding or guards
may be required (Figure 4).
•4'(1.2m)BELOWadoor,window,
cavity, or air vent
•4'(1.2m)HORIZONTALLYFROMa
door, window, cavity, or air vent
•1'(305mm)ABOVEadoor,window,
cavity, or air vent
Install Vent at Clearanc-
es Specified by the Vent
Manufacturer.
The exhaust termination location must be
at least
•1'(305mm)ABOVEthegroundlevel
•7'(2.1m)FROMapublicwalkway
•1'(305mm)FROMthewallpenetra-
tion point
•2'(610mm)FROManyadjacentcom-
bustiblessuchas:adjacentbuildings,
fences, protruding parts of the struc-
ture, roof eaves or overhangs, plants,
shrubs, etc.
Figure 4
Figure 5
ENDURANCE 50F TERMINATION REQUIREMENTS & CLEARANCES