EasyManua.ls Logo

Fantech SHR 2004 - Installation Examples (Continued); Partially Dedicated System Installation

Fantech SHR 2004
28 pages
Print Icon
To Next Page IconTo Next Page
To Next Page IconTo Next Page
To Previous Page IconTo Previous Page
To Previous Page IconTo Previous Page
Loading...
10
Bedrooms
Fresh Air
Exhaust Air
Furnace thermostat
Exhaust CG 4 (4” Adjustable Grill)
Bathroom
460 mm
HRV
Central Control - optional
Return Air
HRV
Connection
3m
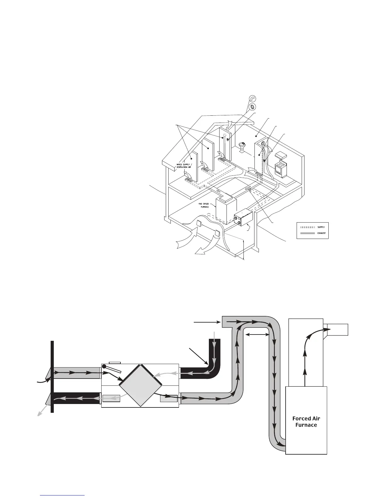
Partially Dedicated System
DIRECT CONNECTION of the SUPPLY AIR STREAM to the FURNACE COLD AIR RETURN
(Stale air drawn from key areas of home)
NOTES:
1. Furnace blower must operate when ventilation from HRV is required.
The furnace should be set to run continuously or interlocked with HRV.
2. Weatherhood arrangement is for illustrative purposes only. 3m (10')
minimum separation and 460mm (18") above grade is recommended.
3. Due to the differences in pressure between the HRV and the equip-
ment it is being connected to, the HRV's airflow must be balanced on
site, using the procedure found in section “AIRFLOW BALANCING”.
FEL 4 (4” Miter Elbow)
INSTALLATION EXAMPLES (CONT'D)
Example diagram only - Duct configuration may change depending on model
HRV/Furnace ducting for Partially Dedicated System
Stale air coming from different areas of the
house (ie bathroom, kitchen).
* Unit air flow should be balanced while HRV is on "High" speed and fur-
nace blower is running.
Outside
Air return
1 m (3' 3")
min.
recommended
Cold air
return
* Ductwork layout may dif-
fer depending on model

Other manuals for Fantech SHR 2004

Related product manuals