EasyManua.ls Logo

Fantech SHR 2004 - Installation Examples (Continued); Simplified Installation - Option 1

Fantech SHR 2004
28 pages
Print Icon
To Next Page IconTo Next Page
To Next Page IconTo Next Page
To Previous Page IconTo Previous Page
To Previous Page IconTo Previous Page
Loading...
11
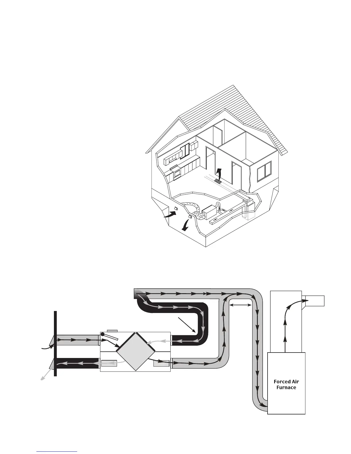
INSTALLATION EXAMPLES (CONT'D)
DIRECT CONNECTION of both the HRV SUPPLY AIR STREAM and
EXHAUST AIR STREAM to the FURNACE COLD AIR RETURN
Simplified Installation
Option 1
(Return/Return Method)
NOTES:
1. Furnace blower must operate when ventilation from HRV is required.
The furnace should be set to run continuously or interlocked with HRV.
2. A minimum separation of 1m (39") is recommended between the two
direct connections.
3. In order to prevent exhausting any fresh air, the HRV's exhaust air con-
nection should be upstream of the HRV's supply air connection when
ducting to the furnace's cold air return.
4. Weatherhood arrangement is for illustrative purposes only. 3m (10') mini-
mum separation and 460mm (18") above grade is recommended.
5. Due to the differences in pressure between the HRV and the equipment
it is being connected to, the HRV’s airflow should be balanced on site,
using the procedure found in section "AIRFLOW BALANCING".
NOTE: In the case of a sim-
plified installation, Option 1
is recommended.
Example diagram only - Duct configuration may change depending on model
Stale air coming from different areas of the
house (ie bathroom, kitchen).
* Unit air flow should be balanced while HRV is on "High" speed and fur-
nace blower is running.
Outside
Air return
1 m (3' 3")
min.
recommended
Cold air
return
* Ductwork layout may dif-
fer depending on model
HRV/Furnace ducting for Simplified Installation - Option 1

Other manuals for Fantech SHR 2004

Related product manuals