EasyManua.ls Logo

Fantech SHR 2004 - Electrical Connections; General Wiring Diagrams

Fantech SHR 2004
28 pages
Print Icon
To Next Page IconTo Next Page
To Next Page IconTo Next Page
To Previous Page IconTo Previous Page
To Previous Page IconTo Previous Page
Loading...
16
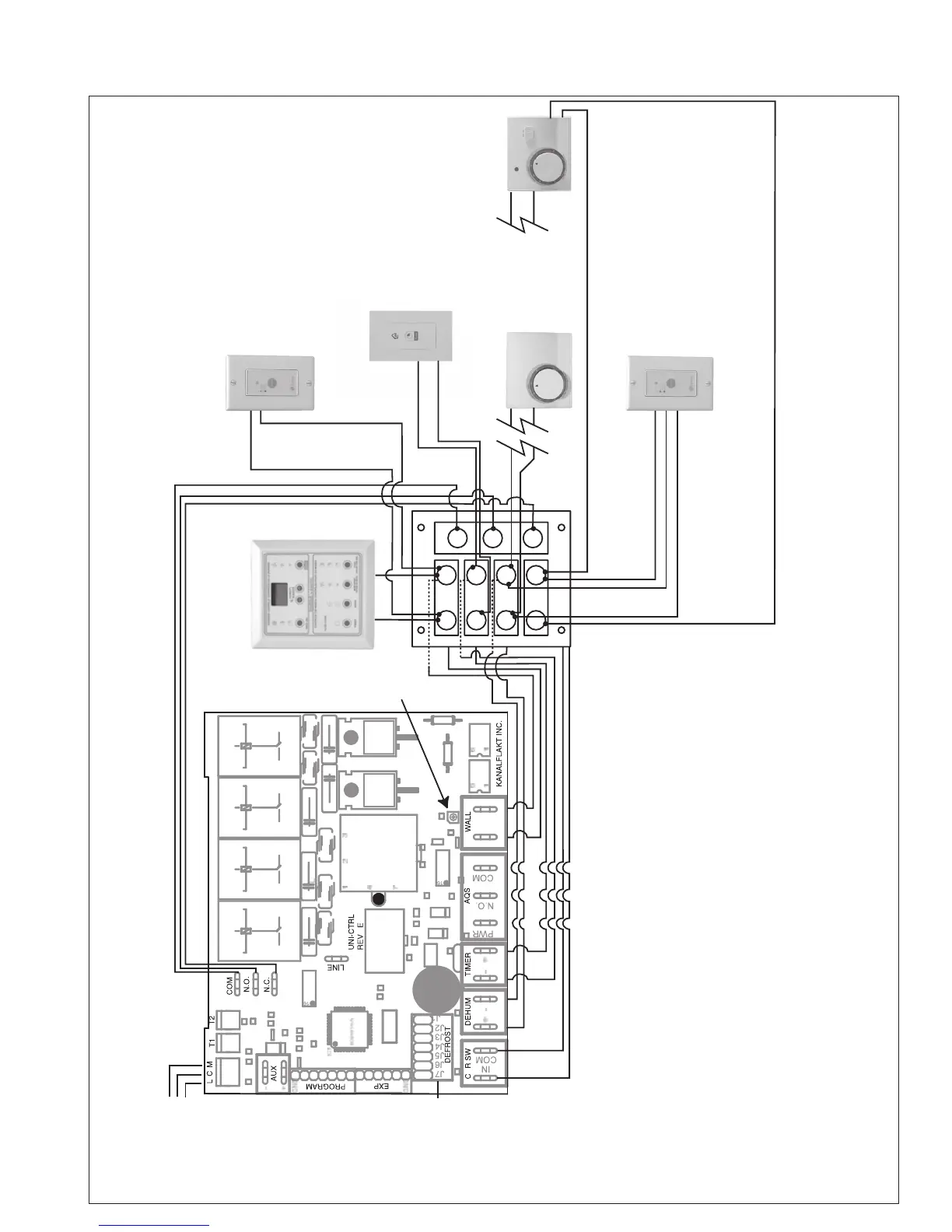
ELECTRICAL CONNECTIONS
Air Quality
Sensor
- +
Custom defrost
mode jumper
selection
3 position mode
selection switch
Diagnostic
LED
U
20-minute timer
(up to 5 timers)
Dehumidistat
2 wires
Dehumidistat
On/Off
4 wires
Mechanical
Crank Timer
2 wires
and /
or
and /
or
(1 only)
CUR SW
DEHUM
N.C.
N.O.
TIMER
EDF
COM
FURNACE
INTERLOCK
+ -
+ -
+ -
IN COM
EDF5 or EDF2
(not shown)
EDF1 and EDF1R (not shown)
RTS3
(observe polarity)
* Wiring diagram of complete unit inside of access panel
Observe polarity on all accessory controls
where applicable.
2 wires
2 wires
3 wires

Other manuals for Fantech SHR 2004

Related product manuals