EasyManua.ls Logo

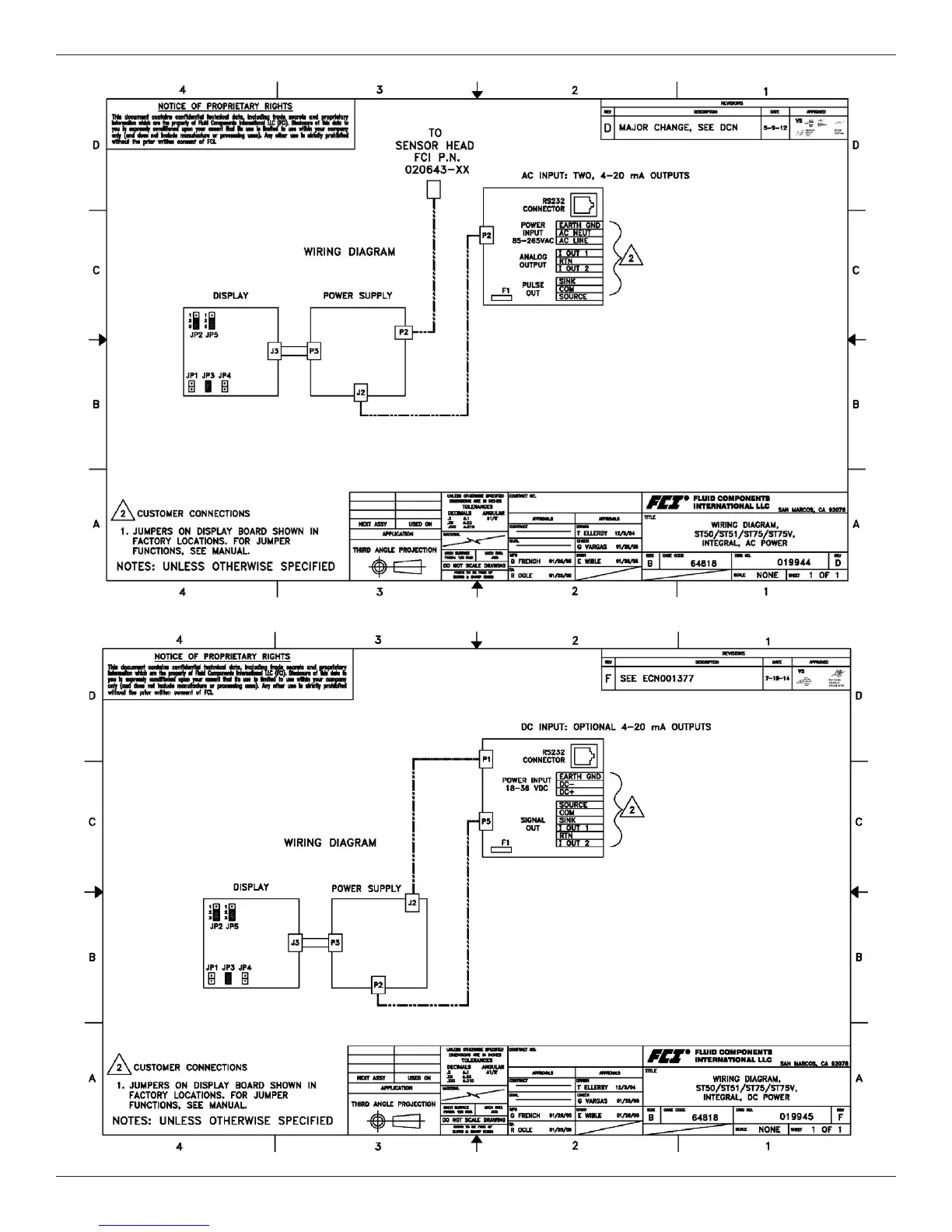
FCI ST75 - Wiring Diagrams

FCI ST75
40 pages
Print Icon
To Next Page IconTo Next Page
To Next Page IconTo Next Page
To Previous Page IconTo Previous Page
To Previous Page IconTo Previous Page
Loading...
ST75/ST75V Mass Flow Meter Fluid Components International LLC
This page is subject to proprietary rights statement on last page
31
06EN003368 Rev. G

Related product manuals