EasyManua.ls Logo

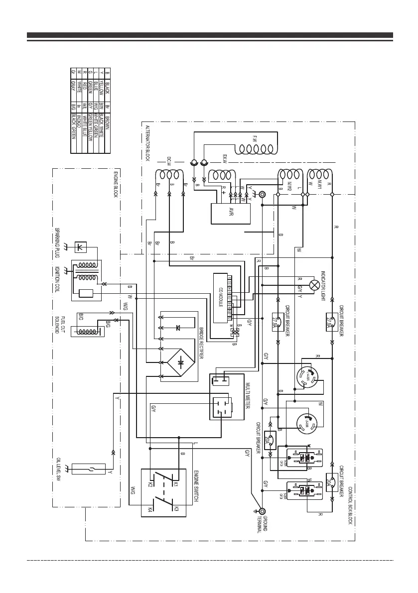
Firman P06702 - Wiring Diagram; Generator Electrical System Schematic

Firman P06702
72 pages
Print Icon
To Next Page IconTo Next Page
To Next Page IconTo Next Page
To Previous Page IconTo Previous Page
To Previous Page IconTo Previous Page
Loading...
Page 29
English Customer Service: 1-844-FIRMAN1
Wiring Diagram

Table of Contents

Related product manuals