EasyManua.ls Logo

Firman P06702 - Diagrama de Cableado

Firman P06702
72 pages
Print Icon
To Next Page IconTo Next Page
To Next Page IconTo Next Page
To Previous Page IconTo Previous Page
To Previous Page IconTo Previous Page
Loading...
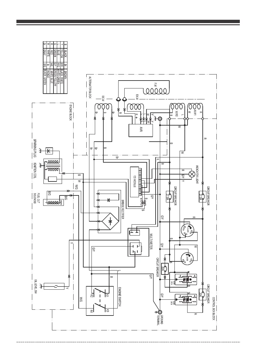
Diagrama de Cableado
29
Spanish Servicio al Cliente: 1-844-FIRMAN1

Table of Contents

Related product manuals