EasyManua.ls Logo

FLYGT 3069 - Sensors and Monitoring Equipment

FLYGT 3069
64 pages
Print Icon
To Next Page IconTo Next Page
To Next Page IconTo Next Page
To Previous Page IconTo Previous Page
To Previous Page IconTo Previous Page
Loading...
Parts
The information describes the product in general. The supplied product can differ on a
detailed level.
WS009131A
1
2
3
4
5
6
7
8
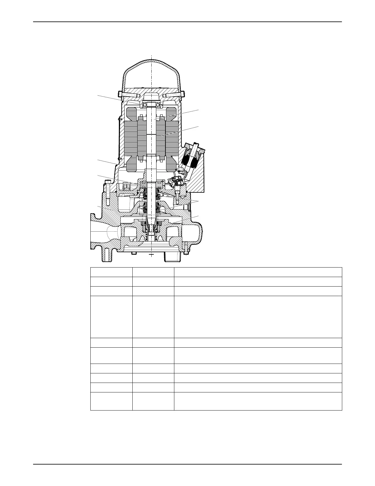
Position Part Description
1 Shaft Stainless steel shaft with integrated rotor
2 Electric motor For more information about the motor, see Motor data on page 58
3 Mechanical seal One stationary and one rotating seal ring
Aluminum oxide Al
2
O
3
Carbon CSB
Corrosion-resistant cemented carbide WCCR
For information, see Parts List.
4 Impeller
5 Pump housing The pump housing includes a coolant that lubricates and cools the seals; the
housing acts as a buffer between the pumped fluid and the drive unit.
6 Main bearing Single-row deep-groove ball bearing
7 Stator housing The pump is cooled by the ambient liquid or air.
8 Support bearing Single-row deep-groove ball bearing
Screws and nuts Property class 80
See Torque values on page 37.
3.2 Sensors and monitoring equipment
The following applies to the monitoring equipment of the pump:
3 Product Description
Flygt 3069 Installation, Operation, and Maintenance Manual 13

Table of Contents

Related product manuals