EasyManua.ls Logo

Follett Performance Plus REF5P - Page 35

Follett Performance Plus REF5P
48 pages
Print Icon
To Next Page IconTo Next Page
To Next Page IconTo Next Page
To Previous Page IconTo Previous Page
To Previous Page IconTo Previous Page
Loading...
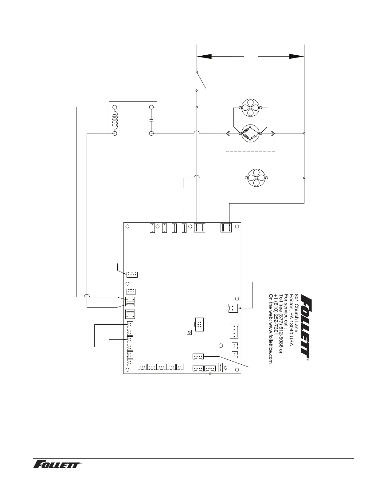
REF4P, REF5P and REF5BBP-T Undercounter Refrigerators 35
Basic Units (Serial Number E98967 and above)
01097781R01
N
C
EVAP
FAN
PWR SW
COMPRESSOR
DEF
EVAP FAN
COND FAN
DOOR HTR
21
43
INPUT
12VDC
240VAC/20A
OUTPUT
WHT
BLK
MACHINE CONTROL
BLK
P3-ALARM BOTTLE
P1-CONTROL
HOT (L1)
NEUTRAL (L2)
RELAY
COMP
RELAY
BATTERY
WHT
(KEYPAD ONLY)
ELOCK
DISPLAY
A B A B
HOT
NEUTRAL
(KEYPAD ONLY)
RED
BLK
120VAC
RED
ORG
BLK
RELAY
BATTERY
BLK
WHT
BLUE
COND
UNIT
NETWORK INTERFACE CARD

Related product manuals