EasyManua.ls Logo

Follett REF1 - Refrigeration System Pressures; Compressor Information

Follett REF1
32 pages
Print Icon
To Next Page IconTo Next Page
To Next Page IconTo Next Page
To Previous Page IconTo Previous Page
To Previous Page IconTo Previous Page
Loading...
REF1/REF2 Compact Refrigerators 21
Checking Refrigeration System Pressures
CAUTION!
Please contact Follett Technical Service at (877) 612-5086 or (610) 252-7301 in the event of a
refrigeration problem that requires evacuation and recharging.
REF1, REF2
REF1 REF2
Condenser inlet air temperature 70 F (21.1 C) 80 F (26.6 C) 70 F (21.1 C) 80 F (26.6 C)
Suction pressure (psig) 13.0 14.0 13.0 14.0
Discharge pressure (psig) 126 140 126 140
Note: Do not attempt to obtain correct refrigeration pressures by adjusting the system charge.
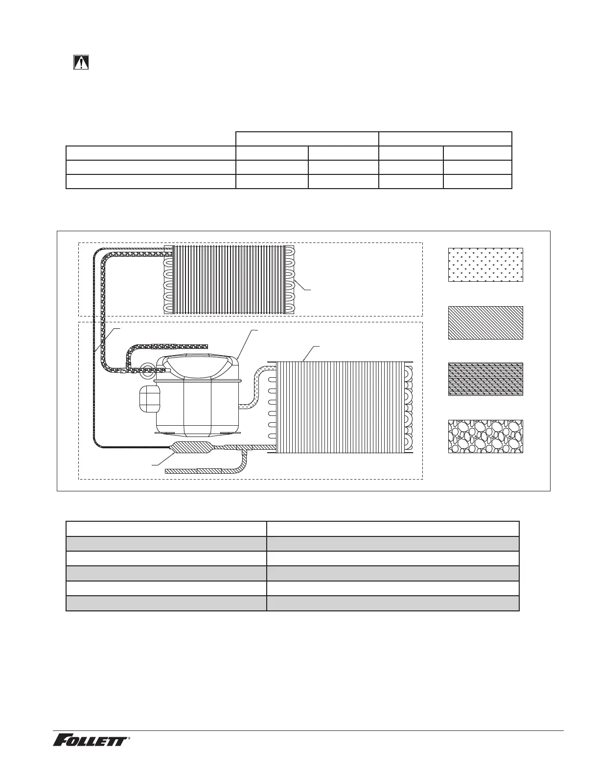
Refrigeration System Diagram
FILTER-DRIER
CAPILLARY TUBE
COMPRESSOR
CONDENSER
LOW-PRESSURE VAPOR
EVAPORATOR
LOW-PRESSURE LIQUID
HIGH-PRESSURE VAPOR
HIGH-PRESSURE LIQUID
Compressor Information
Danfoss model TL2.5
Run load amps (RLA) 2
Lock rotor amps (LRA) 16
Ohms start winding to common 4.9
Ohms run winding to common 5.3
Ohms start winding to run winding 10.2

Other manuals for Follett REF1

Related product manuals