EasyManua.ls Logo

Fujitsu ACUH09LUAS1 - Dimensions; Models: ACUH09 LUAS1, ACUH12 LUAS1, and ACUH18 LUAS1

Fujitsu ACUH09LUAS1
96 pages
To Next Page IconTo Next Page
To Next Page IconTo Next Page
To Previous Page IconTo Previous Page
To Previous Page IconTo Previous Page
Loading...
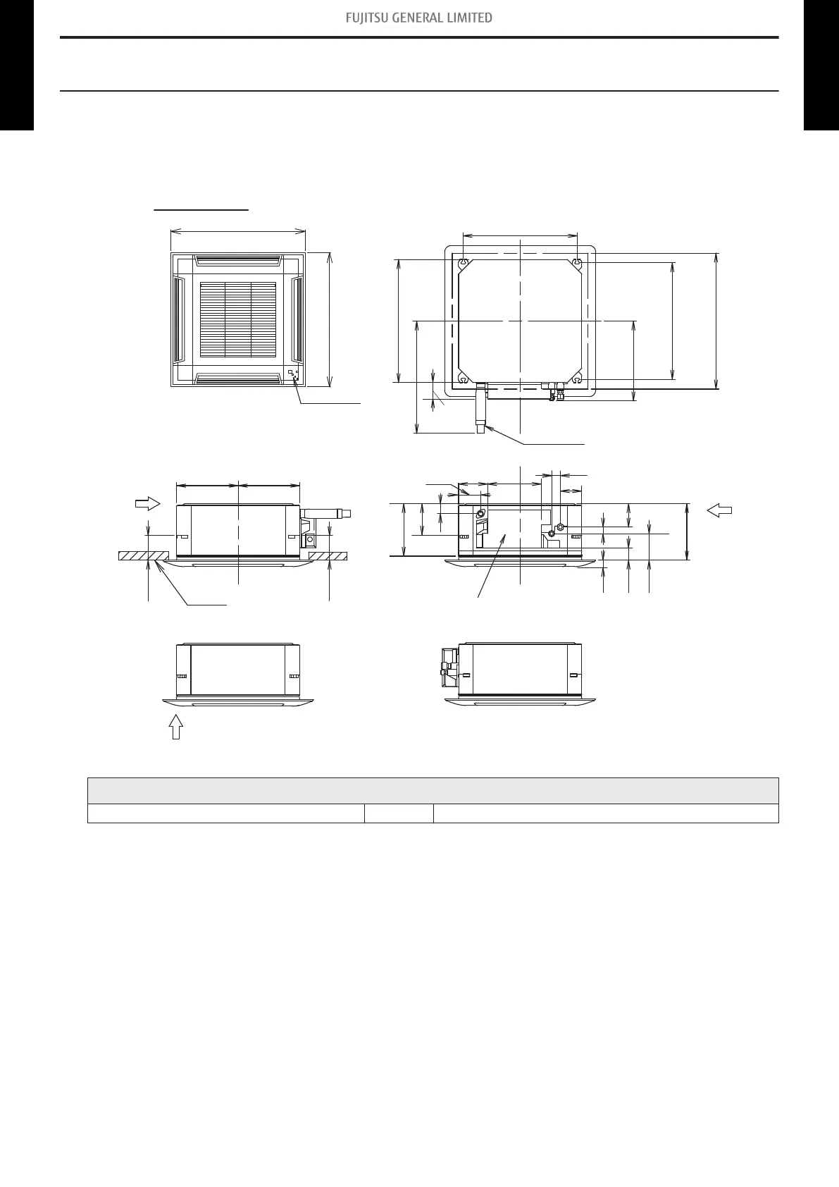
2. Dimensions
2-1. Models: ACUH09LUAS1, ACUH12LUAS1, and
ACUH18LUAS1
Unit: in (mm)
Ceiling
B
View A
22-7/16 (570): Indoor unit
Hanging bolt position
a: Ceiling openings
20-7/8 (530)
Hanging bolt position
Drain hose
A
4-7/8 (124)
Control Box
C
24-7/16 (620)
24-7/16 (620)
IR receiver
Grid type grille
View B
View C
20-7/8
(530)
2-15/16
(75)
14-9/16
(370)
21-1/4 (540)
11-1/4
(285)
11-1/4
(285)
4-1/2 (114)
4-1/2 (114)
10-5/16
(262)
9-5/8
(245)
5-13/16
(146)
1-9/16
(40)
4
(102)
5-5/16
(135)
9-13/16
(250)
1-3/5
(40)
3-7/8
(99)
1-3/16
(30)
1-3/16 (30)
2-5/16 (58)
4-1/8
(108)
a: Ceiling openings
Cassette grille (Option [Grid type]) in (mm) 22-13/16 to 24 (580 to 610)
- 4 -
2-1. Models: ACUH09LUAS1, ACUH12LUAS1, and ACUH18LUAS1 2. Dimensions
CASSETTE TYPE
ADUH09-18LUAS1
CASSETTE TYPE
ADUH09-18LUAS1

Table of Contents

Other manuals for Fujitsu ACUH09LUAS1

Related product manuals