EasyManua.ls Logo

Fujitsu ASYG12KMCDN - 2. Dimensions

Fujitsu ASYG12KMCDN
65 pages
Print Icon
To Next Page IconTo Next Page
To Next Page IconTo Next Page
To Previous Page IconTo Previous Page
To Previous Page IconTo Previous Page
Loading...
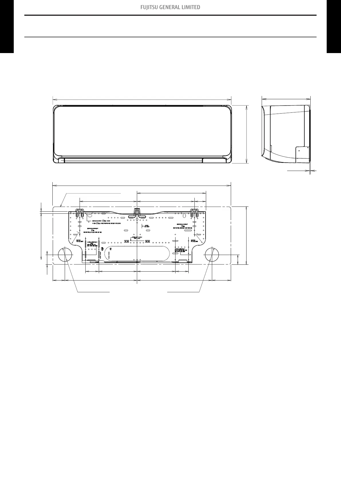
2. Dimensions
2-1. Models: ASYG09KMCDN, ASYG12KMCDN, and
ASYG14KMCDN
Unit: mm
(834)
Outline of indoor unit
327
273273 54
(270)
43
43
9.5220
for pipe inlet Ø65 for pipe inlet Ø65
182 182
35634648 84
63 63
834
270
222
3.0
- 4 -
2-1. Models: ASYG09KMCDN, ASYG12KMCDN, and ASYG14KMCDN 2. Dimensions
WALL MOUNTED
ASYG09-14KMCDN
WALL MOUNTED
ASYG09-14KMCDN

Table of Contents

Related product manuals