EasyManua.ls Logo

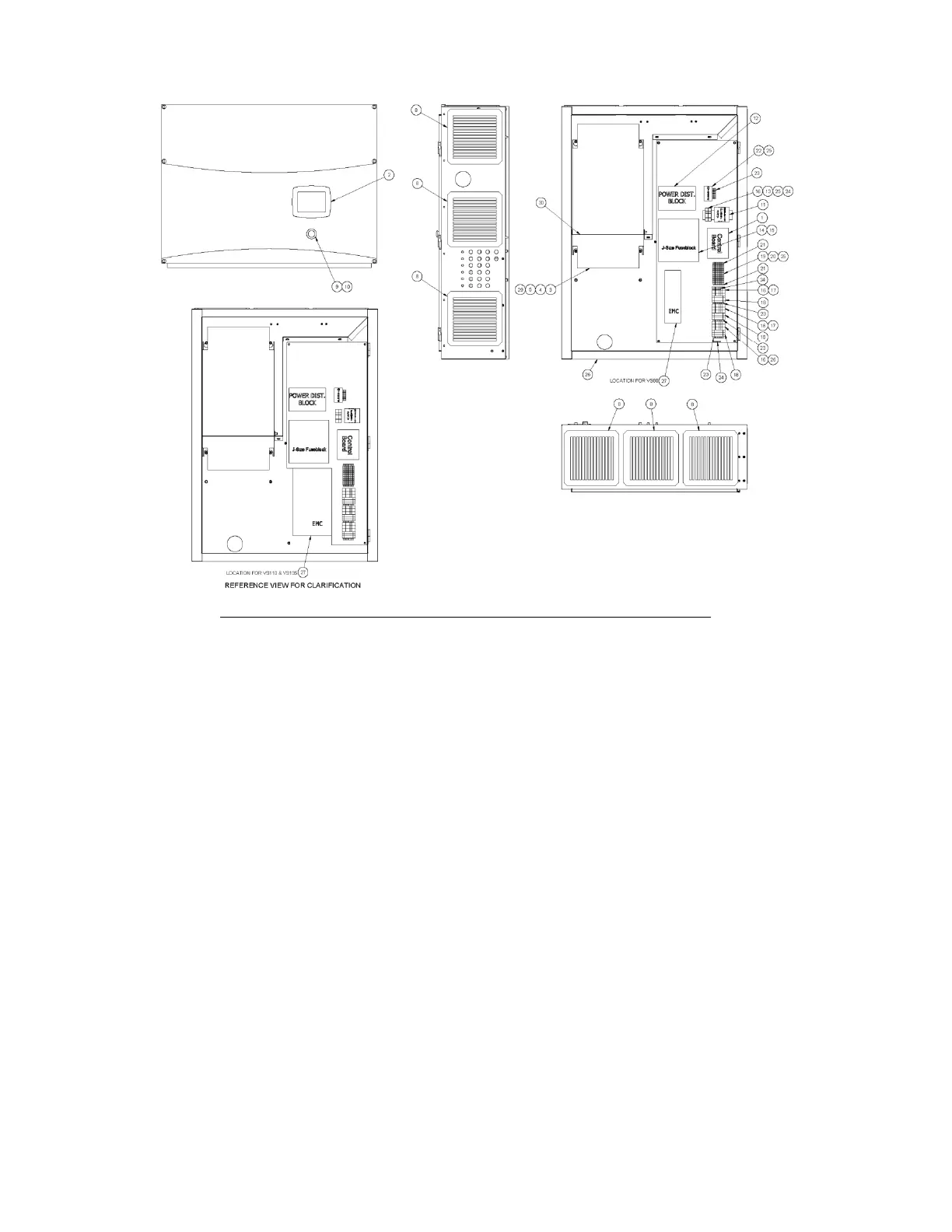
Gardner Denver VS80A - Figure 4-1 - Electrical Enclosure Hardware

Gardner Denver VS80A
88 pages
Print Icon
To Next Page IconTo Next Page
To Next Page IconTo Next Page
To Previous Page IconTo Previous Page
To Previous Page IconTo Previous Page
Loading...
13-18-609 Page 27
4-2
Ref. No.
Name of Part
1 AirSmart CONTROL ...............................................................
2 AirSmart MODULE .................................................................
3 DRIVE GROUP ......................................................................
4 SPLITTER CABLE ..................................................................
5 PLUG KIT ...............................................................................
7 CONTROL BOX .....................................................................
8 BLACK GRILLE FILTER .........................................................
9 OPERATOR ...........................................................................
10 CONTACT BLOCK .................................................................
11 POWER SUPPLY ...................................................................
12 POWER DISTRIBUTION BLOCK ...........................................
13 FUSE .....................................................................................
14 FUSE HOLDER ......................................................................
15 FUSE .....................................................................................
16 FUSE BLOCK.........................................................................
17 FUSE .....................................................................................
18 RELAY ...................................................................................
19 TERMINAL BLOCK ................................................................
20 TERMINAL BLOCK ................................................................
21 GROUND BLOCK...................................................................
22 GROUND BLOCK...................................................................
23 GROUND BLOCK...................................................................
24 TERMINAL BLOCK ................................................................
25 DIN RAIL ................................................................................
26 FUSE .....................................................................................
27 FILTER ..................................................................................
29 NUT .......................................................................................
30 BAFFLE .................................................................................
Figure 4- 1 ELECTRICAL ENCLOSURE HARDWARE
313CGF810
-
D
(Ref. Drawing)

Table of Contents

Related product manuals