EasyManua.ls Logo

GE AF-650 GP

GE AF-650 GP
166 pages
To Next Page IconTo Next Page
To Next Page IconTo Next Page
To Previous Page IconTo Previous Page
To Previous Page IconTo Previous Page
Loading...
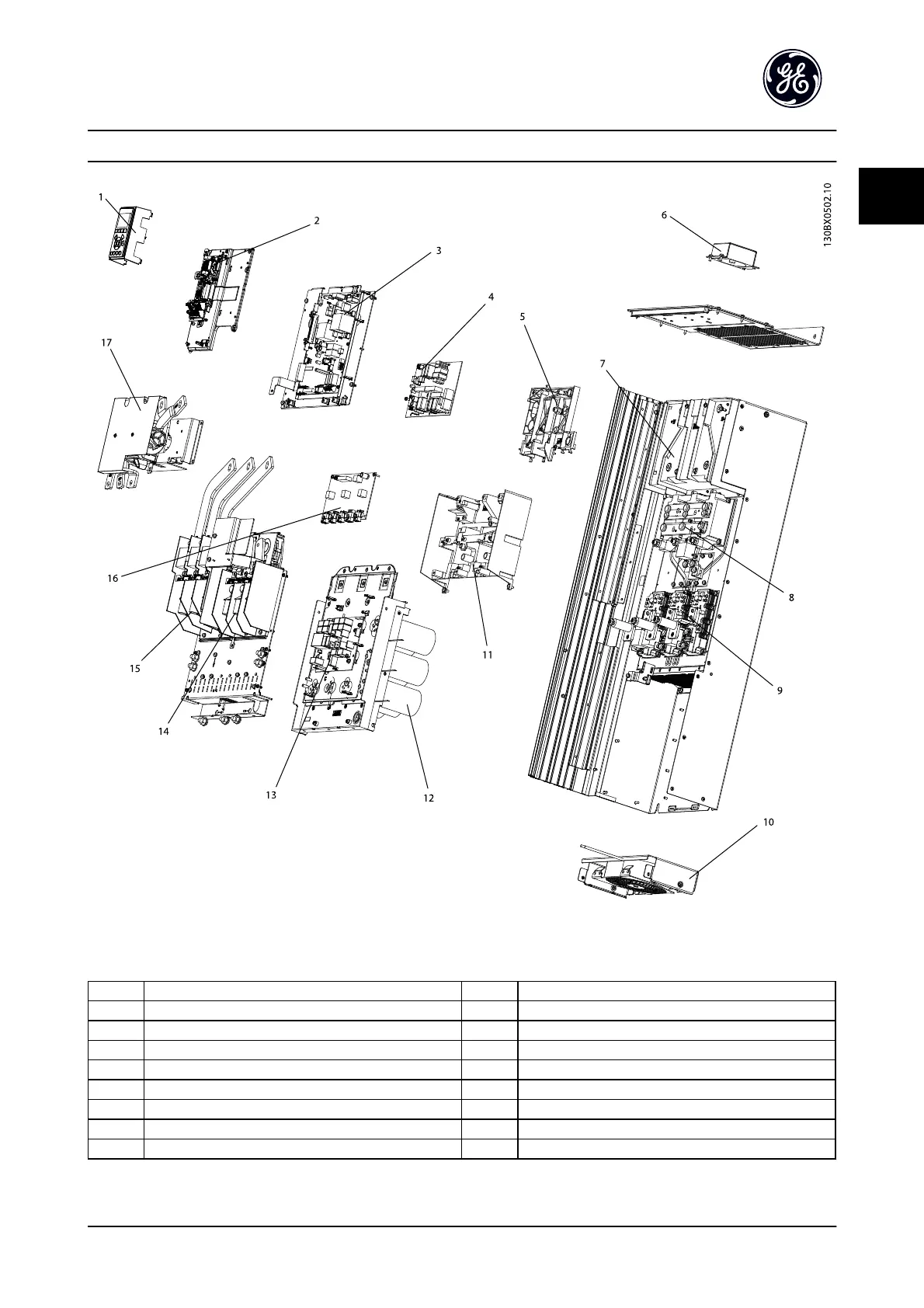
Figure 1.3 Exploded View Unit Sizes 41h, 42h, 43h, 44h
1 Local control panel mounting bracket 10 Heatsink fan
2 Control card and mounting plate 11 Gate drive support bracket
3 Power card and mounting plate 12 Capacitor bank
4 Inrush card 13 Balance/High frequency card
5 Inrush card mounting bracket 14 Motor output terminals
6 Top fan (IP20 only) 15 Line power input terminals
7 DC inductor 16 Gate drive card
8 SCR/Diode modules 17 (optional) RFI filter
9 IGBT modules
Table 1.3
Introduction
AF-650 GP
TM
Design and Installation Guide
DET-767A 1-3
1 1

Table of Contents

Other manuals for GE AF-650 GP

Related product manuals