EasyManua.ls Logo

GE Multilin HID - Mounting; External Connections Diagram

GE Multilin HID
23 pages
Print Icon
To Next Page IconTo Next Page
To Next Page IconTo Next Page
To Previous Page IconTo Previous Page
To Previous Page IconTo Previous Page
Loading...
HARDWARE
3.1.1. MOUNTING
The HID module is composed of a black metallic stainless steel case. The case contains a metallic panel to which
the MOV (Metal Oxide Varistors) and the stabilizing resistors are hooked, as well as the connections base for the
latching relay and internal connections among the stabilizing resistors, MOV, and latching relay contacts.
Components are mounted on a base screwed to the rear side of the case. The module is closed with the frontal
plate where the latching relay reset button is located.
The wiring is made in the rear side of the module.
Drilling dimensions are shown on the drilling dimension diagram (FIGURE 3-5)
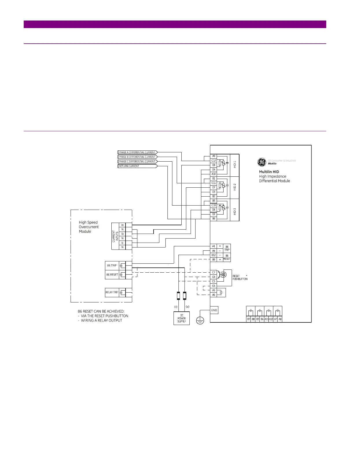
3.1.2. EXTERNAL CONNECTIONS DIAGRAM
FIGURE 3-2 HID 32 WIRING DIAGRAM (226B5177)
3-2 HID High Impedance Differential Module GEK-113064

Related product manuals