EasyManua.ls Logo

GE Multilin HID - Page 19

GE Multilin HID
23 pages
Print Icon
To Next Page IconTo Next Page
To Next Page IconTo Next Page
To Previous Page IconTo Previous Page
To Previous Page IconTo Previous Page
Loading...
HARDWARE
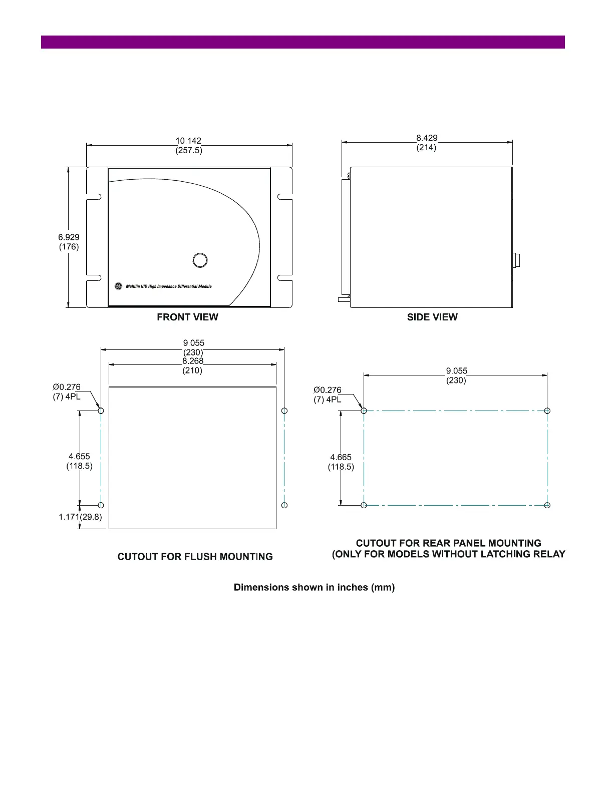
This module can be mounted together with a high-speed overcurrent module or it can be mounted alone. FIGURE
3-5 shows the drilling panel for this situation.
FIGURE 3-5 DIMENSIONS AND DRILLING FOR HID MODULE
3-6 HID High Impedance Differential Module GEK-113064

Related product manuals