EasyManua.ls Logo

GO Systemelektronik BlueSense Module - Connection Diagram 1 Control Parameter

GO Systemelektronik BlueSense Module
16 pages
Print Icon
To Next Page IconTo Next Page
To Next Page IconTo Next Page
To Previous Page IconTo Previous Page
To Previous Page IconTo Previous Page
Loading...
BlueSense Module
GO Systemelektronik GmbH Faluner Weg 1 24109 Kiel Germany Tel.: +49 431 58080-0 Fax: -58080-11
Page 6 / 16
www.go-sys.de info@go-sys.de
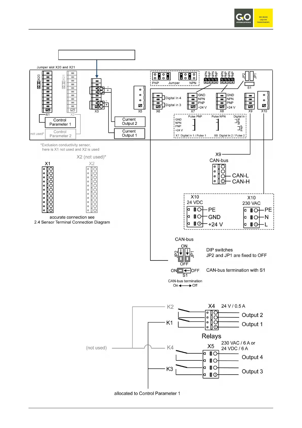
2.2 Connection Diagram 1 Control Parameter
The current outputs are optional.

Related product manuals