EasyManua.ls Logo

golmar Tekna Plus SE - Wiring Diagrams (Continued); Non-Coaxial Cable System Wiring

golmar Tekna Plus SE
20 pages
Print Icon
To Next Page IconTo Next Page
To Next Page IconTo Next Page
To Previous Page IconTo Previous Page
To Previous Page IconTo Previous Page
Loading...
19
TEKNA PLUS SE MONITOR
WIRING DIAGRAMS
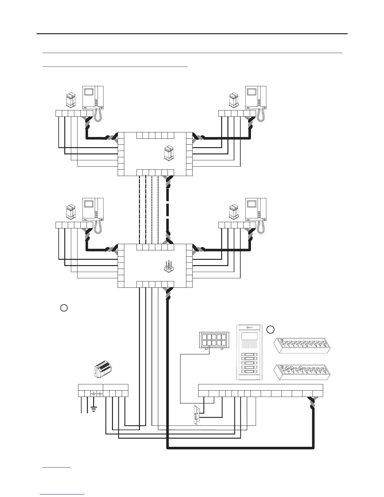
Video door entry system without coaxial cable:
FA-Plus/C or FA-Plus
SEC
PRI
~~
Mains
+ +
--
*Place this power supply
as close as possible
to the first distributor.
* Remove the JP1 jumper
from all of the distributors
.except the last
JP1
A
A
D
D
CT
+
+
V
pi
V
d1
M
pi
M
d1
_
_
A
D
CT
+
V
d6
M
d6
_
A D+
V
po
M
po
_
D6L-Plus/2H
V
p
M
p
A D
_
+
EL562
JP1
V
p
M
p
A D
_
+
EL562
JP1
JP1
A
A
D
D
CT
+
+
V
pi
V
d1
M
pi
M
d1
_
_
A
D
CT
+
V
d6
M
d6
_
A D+
V
po
M
po
_
D6L-Plus/2H
V
p
M
p
A D
_
+
EL562
JP1
V
p
M
p
A D
_
+
EL562
JP1
M =Master.
D
Mesh
Vin-AinAout Vin+ Vout-Vout+
CN1
+
-
+CV1CV2
-
10
1
9
2
8
3
7
4
6
5
CN3
DC
lock release
SW1
SW2
M
Important:
For further information about the door panel, sections, distances, other wiring diagrams, etc., see the T632 PLUS ML User Manual .
https://doc.golmar.es/search/manual/50121859

Related product manuals